Eladó családi ház Székesfehérvár 189 000 000 Ft

Leírás

Egy ház, de két önálló otthon, amely többet nyújt: élettér, érték, lehetőség –- az Öreghegy lábánál

H-004636. Székesfehérváron-Írók utcájában az egyik legnépszerűbb városrészében, Öreghegy zöldövezeti, csendes mellékutcájában eladó egy igazán különleges önálló családi ház.

A környék infrastrukturális ellátottsága kiváló: a közelben iskola, óvoda, élelmiszerbolt, park, játszótér és sportpálya is megtalálható. A belváros gyorsan és könnyen megközelíthető, mégis csendes, nyugodt, családbarát környezetben élhet az, aki ide költözik.

A 1080 m²-es telken álló, kétszintes, összesen 350 m²-es ingatlan nemcsak tágas, hanem kivételesen sokoldalú is: 2 teljesen különálló, saját bejárattal és közműórákkal rendelkező lakóegységet kínál, így ideális választás lehet akár kétgenerációs családnak, akár befektetési céllal keresőknek.

Az ingatlan elrendezése:
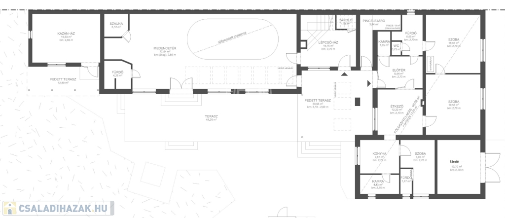
Alsó szint – 93 m², külön bejárattal:
- egy lakrész található: 2 és fél szoba , a fél szoba saját fürdővel, fürdőszoba ,wc, étkező és konyha teljes értékű, jól elkülönülő életteret biztosít.

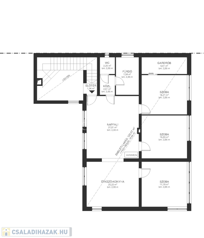
Felső szint – 137 m², külön bejárattal:
- tágas, világos nappalival és étkezős konyhával , 3 hálószobával ( egyik gardróbos) , fürdő-bidével, wc, rendelkező, világos lakás kapott helyet, amely minden részletében a kényelmet és átgondoltságot tükrözi – a minőségi fa lépcsőháztól a saját gardróbhelyiséggel ellátott hálószobán át a különálló fürdőig és mellékhelyiségig.

Ami azonban valóban különlegessé teszi ezt az otthont, az a hozzá tartozó, fűtött és fedett wellnessrészleg.

Wellness részleg – 80 m²:
- 80 négyzetméteres pihenőtérben ellenáramoltatóval, vízmasszázzsal ellátott úszómedence, finn és infraszauna, zuhanyzó wc is helyet kapott – mindez közvetlen kapcsolattal a kazánházhoz és a háztartási helyiséghez, amely a lépcsőházból, a kert felől és a teraszról is külön bejáraton keresztül is megközelíthető.

A ház téglából épült, 2003-ban teljes körűen átépítésre felújításra került. Szigetelt ,összközműves, műszaki felszereltsége is kiemelkedő: radiátoros központi fűtés mellett klímás hűtő-fűtő rendszer, hőcserélős szellőztetés, cserépkályhák, minőségi burkolatok és gondosan kialakított tárolóhelyek biztosítják a magas komfortérzetet. Az épület alatt három különálló pince is található. A wellness részleg fűtése külön gázkazánról megoldott.

A gondozott kert automata öntözőrendszerrel, árnyékot adó, több évtizedes fákkal, kiépített kerti sütögetővel és két terasszal – egy fedett (27 m²) és egy nyitott (40 m²) – várja új tulajdonosát. Egy különálló kerti kisház biztosít helyet a fa- és szerszámtárolásra, az utcafronton pedig egy plusz tárolóhelyiség is kialakításra került.

Eladási irányára: 189 000 000.-Ft

Az ingatlan ideális választás lehet többgenerációs családok számára, de befektetésként, bérbeadásra is kiváló lehetőséget kínál. A tágas belső terek és a magas színvonalú wellnessrészleg együttese egyedülálló életteret biztosít.

Ez az ingatlan nem csupán otthon, hanem egy valódi élettér, amely a nyugalom, a kényelem és az időtálló minőség jegyében épült.

Ha felkeltette érdeklődését, hívja irodánkat bizalommal, éljen ingyenes, személyre szabott hitelügyintézés szolgáltatásunkkal. Segítünk továbbá adásvételhez szükséges ügyvédi közreműködésben, energetikai tanúsítvány, valamint értékbecslés elkészítésében.
For English information please send a message.

Családi ház részletei

Ár: 189 000 000 Ft
Méret: 350 négyzetméter
Azonosító: 11572799
Irodai azonosító: 388535
Cím: Öreghegy lábánál
Telek: 1080 négyzetméter
Ingatlan állapota:
Jelleg: családi ház
Építőanyag: Tégla
Fűtés jellege: Cirkó
Fűtés módja: Gáz
Komfort fokozat: Dupla komfort
Kor: 21-50 éves
Szintek száma: 1 szint
Egész szobák: 6
Fél szobák: 1

Egyéb jellemzők

  • Csatorna
  • Garázs
  • Pince
  • Terasz

Térkép


Így keressen családi házat négy egyszerű lépésben. Csupán 2 perc, kötelezettségek nélkül!

Szűkítse a családi házak
listáját
Válassza ki a megfelelő
családi házat
Írjon a hirdetőnek
Várjon a visszahívásra