Eladó családi ház Székesfehérvár 159 900 000 Ft

Leírás

Azonnal költözhető, kertkapcsolatos lakás Öreghegy szívében –parkosított saját kerttel, garázzsal, saját utcai bejárattal!
H-004650, Székesfehérvár közkedvelt Öreghegy szívében, a Millenniumi emlékmű közelében csendes és jól megközelíthető utcájában kínálunk eladásra, kimagasló műszaki tartalommal rendelkező, kétszintes családiház földszinti lakását.
A ház kiváló elhelyezkedésének köszönhetően a történelmi belváros, illetve az M7 autópálya pár perc távolságra található, mindemellett az elkerülőút közelsége miatt a város többi része is könnyen megközelíthető.
A ház 2006-ban épült, korszerű tégla falazattal, cseréptetővel, földszint + teljes értékű emelet kialakítással, saját telekkel garázsokkal valamint különböző extra kényelmi funkciókkal – wellness részleg – parkosított saját kerttel rendelkeznek.
Az ingatlan területe 1421 m2, két utcafrontos, a ház a telek középen helyezkedik el, így mind az alsó mind a felső lakás saját, külön utcára nyíló bejárattal, saját 710m2 –es telekrésszel mérőórákkal rendelkezik.
A korszerű, fűtési-hűtési rendszer , nyílászárók alumínium motoros redőnyökkel, szúnyoghálókkal, emelő-toló teraszajtóval felszereltek, az épület biztonságát riasztó és kamera rendszer garantálja. Az ingatlan gépészete elektromos felszerelése, -beleértve a kazánt is – telefonról vezérelhető.
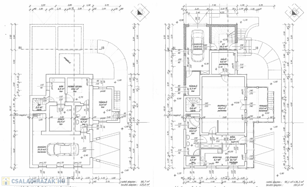
A ház összesen 338m2 hasznos alapterületű, elosztását tekintve:
A földszinti 1 számú lakás 160m2 egy tágas, világos (45m2) nappali, étkezős konyha, 1 hálószoba, fürdőszoba, háztartási helyiség, valamint egy 36 négyzetméteres garázs található, ahonnan közvetlen bejárás nyílik a lakótérbe. A nappaliból közvetlen kijárat vezet a 16 m2-es teraszra, a szuterén részben kapott helyet egy pihenőszoba, ami jelenleg a 6 személyes szaunának ad helyet, valamint egy fürdő, wc, , pince a hozzá tartozó „ borozó”-val, valamint a garázs.
A gyönyörűen parkosított kertbe egy kovácsoltvas kapun keresztül jutunk, ahol a garázson kívül több gépjármű parkolása biztosított, térkövezett beállókkal. A kert öntözőrendszerrel ellátott. Az ingatlan riasztó és kamera rendszerrel felszerelt.
Az ingatlan lakhatáson kívül alkalmas, üzleti tevékenységre, pl: ügyvédi – tervező- vagy könyvelő iroda, szolgáltató tevékenységre, vagy akár lakásként bérbe is adható.
Rugalmas eladó, kedvező fizetési feltételek!
Eladási irányár: 159 900 000 .- Ft / földszinti lakás 710m2 telekkel
Ugyanitt eladó az emeleti lakás is , saját garázzsal, telekrésszel, másik utcára nyíló kapuval bejárattal, az egész ház együttes megvásárlása esetén kedvezmény!
Megtekintés előre egyeztetett időpontban lehetséges.

Ha felkeltette érdeklődését, hívja irodánkat bizalommal, éljen ingyenes, személyre szabott hitelügyintézés szolgáltatásunkkal. Segítünk továbbá adásvételhez szükséges ügyvédi közreműködésben, energetikai tanúsítvány, valamint értékbecslés elkészítésében.

For English information please send a message.

Családi ház részletei

Ár: 159 900 000 Ft
Méret: 160 négyzetméter
Azonosító: 11575431
Irodai azonosító: 389053
Cím: Öreghegy szívében
Telek: 710 négyzetméter
Ingatlan állapota:
Jelleg: családi ház
Építőanyag: Tégla
Fűtés jellege: Cirkó
Fűtés módja: Gáz
Komfort fokozat: Dupla komfort
Kor: 11-20 éves
Szintek száma: Földszintes
Egész szobák: 2
Fél szobák: 1

Egyéb jellemzők

  • Csatorna
  • Garázs
  • Pince
  • Terasz

Térkép


Így keressen családi házat négy egyszerű lépésben. Csupán 2 perc, kötelezettségek nélkül!

Szűkítse a családi házak
listáját
Válassza ki a megfelelő
családi házat
Írjon a hirdetőnek
Várjon a visszahívásra