Eladó családi ház Szeged 280 000 000 Ft

Leírás

Eladó prémium kivitelezésű luxus kategóriás családi ház,Újszeged zöldövezeti részén, csendes utcában!
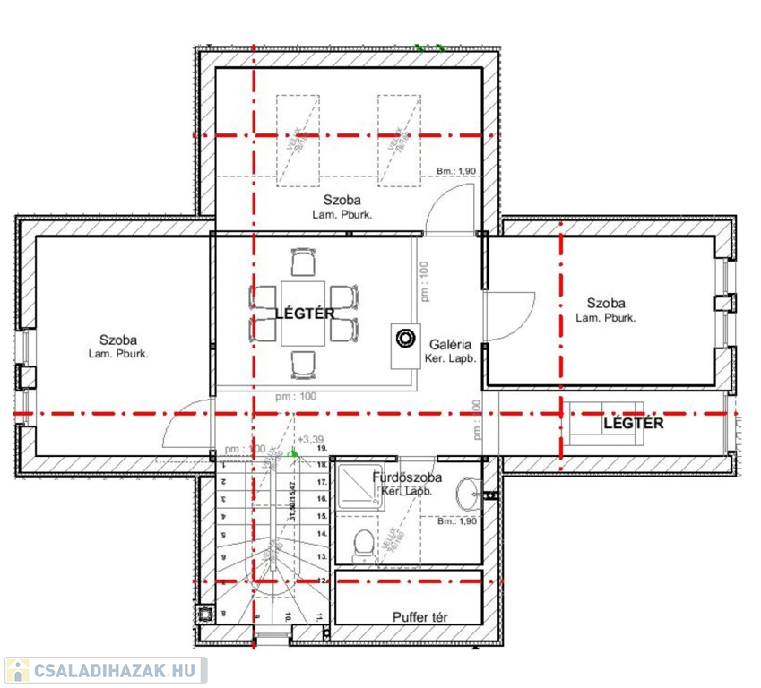
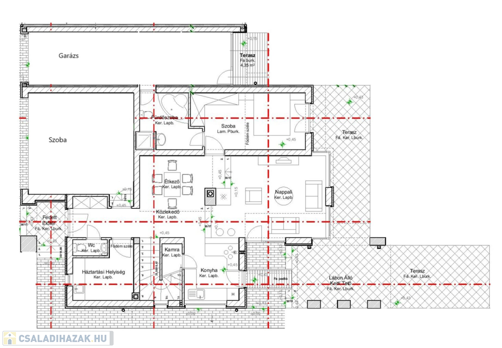
Az ingatlan mind tervezésében, valamint kivitelezésében megfelel a legmagasabb minőségi elvárásoknak, a 760 négyzetméteres telken épült 250 négyzetméteres családi ház ideális választás nagycsaládosok, illetve tágas tereket igénylők számára is, hiszen 5 hálószobás elrendelkezésével minden lakónak lehetőséget ad a privát szférára. Ráadásul egy dupla garázs biztosítja, hogy mindig kényelmesen parkolhasson.
A lakók kényelmét szolgálja továbbá a fedett grillterasz, valamint fűthető úszómedence, és szauna, hogy nap mint nap kihasználhassa a ház nyújtotta lehetőségeket a pihenésre és kikapcsolódásra.

Az ingatlan főbb jellemzői:
- telek: 760 négyzetméter
- lakótér: 250 négyzetméter
- amerikai konyha + nappali + 5 hálószoba + 4 fürdő + 2 wc
- fedett terasz
- garázs + elektromos garázsajtó
- medence
- szauna
- belső kétszintes galériával
- Építés éve: 2008, felújítva: 2022
- réz villamoshálózat, tölgyfa hőszigetelt nyílászárók, redőnnyel szerelve
- riasztórendszer
- Légkondi
- tégla falazat + homlokzati szigetelés
- gáz-cirkó + padló és mennyezetfűtés + vízteres kandalló + napkollektor
- prémium anyagok + dekor világítás
- fúrt kút + automata öntözőrendszer
- parkosított udvar + grillező + kert világítás

Bármely kérdés felmerül önben az ingatlannal kapcsolatban, hívjon bizalommal, a 06 30 2490482 tel. számon.
dr. Vass Zoltán
(További képekért és információkért kérem hívjon!)

Családi ház részletei

Ár: 280 000 000 Ft
Méret: 250 négyzetméter
Azonosító: 11537055
Irodai azonosító: 622048
Telek: 760 négyzetméter
Ingatlan állapota: Kitűnő
Jelleg: családi ház
Építőanyag: Tégla
Fűtés jellege: Cirkó
Egész szobák: 6
Nappalik: 1

Egyéb jellemzők

  • Beépíthető tetőtér
  • Csatorna
  • Garázs
  • Melléképület
  • Pince
  • Terasz

Így keressen családi házat négy egyszerű lépésben. Csupán 2 perc, kötelezettségek nélkül!

Szűkítse a családi házak
listáját
Válassza ki a megfelelő
családi házat
Írjon a hirdetőnek
Várjon a visszahívásra