Eladó családi ház Szeged 269 000 000 Ft

Leírás



Szeged kertvárosában , Újszegeden , a lányneves utcák egyikében , 786m2-es telken épült , 198m2-es , amerikai konyhás nappali + 4 hálószobás ,dupla beállós garázzsal, mediterrán stílusú állom otthon eladó.
Minden családi ház külső és belső szépsége, a jó arányokon és a harmónián múlik, azon túl , hogy a klasszikus elegancia, időtálló minőség, szépérzék sugárzik a ház minden, gondosan megtervezett szegletéből, melegséget és otthonosságot áraszt.
Elrendezését tekintve:
A két szintes, 198 m2-es ház + közvetlen a nappalihoz kapcsolódó, 20 m2 téliesíthető terasz és a kert végében megépített, szintén teljesen felszerelt, téliesíthető, grill terasz , fürdőszobával, wc-vel:
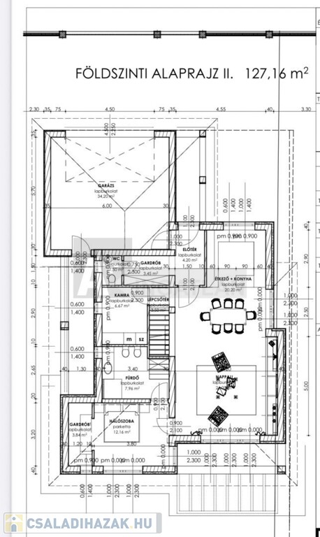
-földszint elrendezése: 34 m2-es garázs , előtér , gardrób, vendég mosdó , kamra és háztartási helyiség és a mediterrán otthonok központi tere a napfényes amerikai konyhás nappali , a közösségi élet színtere , amely elhúzható üvegajtóval kapcsolódik a teraszhoz és mediterrán parkosított kerthez, medencéhez,
és itt van kialakítva a szülői hálószoba, gardróbbal és saját fürdőszobával
-emeletelrendezése : 3 hálószoba , fürdőszoba , wc és háztartási helyiség gardróbbal
A mediterrán otthonokban,ház minden szegletéből árad a nyugalom , otthonosság, a pozitív energiát hirdeti, ahol a mindennapok élvezete hangsúlyos.A csodálatos növényekkel , pálmafákkal, kialakított kert,vízfogatóval és ellenáramoltatóval felszerelt medencével és a családi , baráti rendezvényeknek kialakított , rusztikus grill terasz ,amely szintén téliesíthető , saját tusolós fürdőszobával .
A kert intimitását ,a privát teret, az egyedi kialakítású , magas kőkerítés biztosítja.
Műszaki tartam :
-38cm-es tégla + 15cm-es grafitos szigetelés
-napelem 11kw , hőszivattyú , padló fűtés , mennyezet hűtés , termosztát helyiségenként, központi szellőztető, központi porszívó , riasztó rendszer , 6 kamerás ,
-fúrt kút , öntözőrendszer ,
-az egész házban jellemző: stílusosan, gondosan kiválasztott , exkluzív , prémium minőségű , spanyol , olasz , burkolatok , csempék , szaniterek , fürdőszobai kiegészítők , beltéri ajtók, rusztikus falburkolatok , csillárok , falikarok , led világítások...
Ez a csodálatos mediterrán stílusú családi ház , gondoskodik arról , hogy leendő új lakói is minden napot vakációként élvezhessenek új otthonukban!

Jöjjön el , nézze meg , tegyen ajánlatot !
Hívjon bizalommal , akár hétvégén is !

Családi ház részletei

Ár: 269 000 000 Ft
Méret: 198 négyzetméter
Azonosító: 11572093
Irodai azonosító: 122581
Cím: Szeged
Ingatlan állapota: Kitűnő
Jelleg: családi ház
Építőanyag: Kérdezzen rá a hirdetőtől »
Fűtés jellege: Cirkó

Egyéb jellemzők

  • Terasz

Így keressen családi házat négy egyszerű lépésben. Csupán 2 perc, kötelezettségek nélkül!

Szűkítse a családi házak
listáját
Válassza ki a megfelelő
családi házat
Írjon a hirdetőnek
Várjon a visszahívásra