Eladó családi ház Szeged 233 879 500 Ft

Leírás

Szeged-Marostő részén, új építésű, egyedi tervezésű, két szintes, nappali+amerikai konyha + 4 szobás, minőségi családi ház eladó, akár kulcsrakész állapotban!

A 203 hasznos négyzetméterrel rendelkező lakóingatlan Szeged városának Marostő részén - Szeged úgynevezett Rózsadombján - került megépítésre egy 753 négyzetméteres telken. A városrész jellegzetessége, hogy a környék nagyon szép, igényes, új építésű házakkal van tarkítva.

A duplakomfortos ház két szintet kapott, a helyiségek az alábbiak szerint lettek kialakítva:

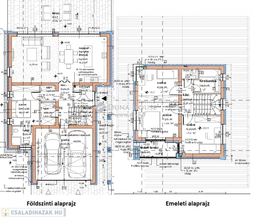
Földszint:

Nappali+amerikai konyha (48,50 négyzetméter)
Szoba (12,18 négyzetméter)
Fürdőszoba+WC - Tusolóval (4,40 négyzetméter)
WC (1,56 négyzetméter)
Háztartási helyiség (3,84 négyzetméter)
Közlekedő (5,99 négyzetméter)
Közlekedő (2,72 négyzetméter)
Lépcsőtér (2,91 négyzetméter)
Szélfogó (4,40 négyzetméter)
Kétállásos garázs (33 négyzetméter)
Fedett bejáró (14,78 négyzetméter)
Terasz (37,06 négyzetméter)

Emelet:

Szoba (12,60 négyzetméter)
Szoba (11,66 négyzetméter)
Szoba (11,29 négyzetméter)
Fürdőszoba - Fürdőkáddal (5 négyzetméter)
WC (1,35 négyzetméter)
Közlekedő (6,30 négyzetméter)
Fedett terasz (5,31 négyzetméter)

Lévén, hogy új építésű házról van szó, említést érdemel a 30 centiméter vastag vázkerámia főfalazat, a földrengésbiztos vasbeton födém (az első szint esetében). Az EPS homlokzati, az XPS vasbeton koszorú és kőzetgyapot födém szigetelés felel a kiváló energetikáért. A téli fűtésről és nyári hűtésről hőszivattyú gondoskodik, padlófűtéses hőleadással. A nyári forróság elkerüléséért a mennyezeti hűtési rendszer felel. Kiemelendő még, hogy a hűtést-fűtést szabályzó GNBS elektronika is betelepítésre kerül, így akár laptopról, telefonról is gondoskodni lehet a ház éppen megfelelő hőmérsékletéről. A garázsba elektromos autók számára töltőállomás létesítése is megtörténik.

Több készültségi fokozatban is megvásárolható az ingatlan, ezek különböző tartalmi, felszereltségi és anyagi vonzattal bírnak:

Emelt szintű szerkezetkész állapot tartalma, felszereltsége: Elektromos hálózat kiépítése riasztórendszerrel együtt (gyenge áram), szerelvények nélkül, falak két sorral történő glettelése, egy sorral történő fehérre festése, hőszivattyú betelepítése, padlófűtési és mennyezet hűtési rendszer kiépítése + NGBS elektronika, továbbá elektromos, okos motorral felszerelt árnyékolás (redőnyök, zsalúziák).

Ára: 215.391.500 HUF.

Kulcsrakész állapot tartalma, felszereltsége: Beltéri ajtók 150.000 HUF értékben, hideg-és melegburkolatok, azok szakszerű lehelyezése 8000 HUF/négyzetméteres értékhatárig, villanyszerelvények egyeztetett árig + alap riasztó rendszer, szaniterek egyeztetett árig. Udvar tereprendezése, azon belül térburkolás a garázsbejárónál és az ajtóban. (A látványterven szereplő medence kiépítése extra anyagi vonzattal bír).

Ára: 233.879.500 HUF

A szóban lévő ingatlan 1 kilométeres vonzáskörzetében óvoda, iskola, bevásárló centrum, valamint sportközpont, mind egyaránt megtalálható.

Elsősorban a magas minőséget kedvelő, nagyobb családok számára ajánlom! A képek a kivitelezésről folyamatosan frissülnek. Addig is bármilyen kérdés esetén, kérem forduljon hozzám bizalommal!

Családi ház részletei

Ár: 233 879 500 Ft
Méret: 184 négyzetméter
Azonosító: 11580419
Irodai azonosító: HZ096120-4708899
Telek: 753 négyzetméter
Ingatlan állapota: Épülő
Jelleg: családi ház
Építőanyag: Tégla
Fűtés jellege: Villany
Fűtés módja: Hőszivattyú
Kor: Új építésű
Szintek száma: Földszintes
Egész szobák: 5

Térkép


Így keressen családi házat négy egyszerű lépésben. Csupán 2 perc, kötelezettségek nélkül!

Szűkítse a családi házak
listáját
Válassza ki a megfelelő
családi házat
Írjon a hirdetőnek
Várjon a visszahívásra