Eladó családi ház Szeged 215 000 000 Ft

Leírás

Eladó ~218,00 m2 alapterületű, tégla építésű családi ház Szegeden. Az 1082 m2 területű telek egyik különlegessége, hogy a hátsó kijárata zöld övezetben lévő tóra nyílik!
A kétszintes fő épületet tulajdonosai építtették 1982-ben, majd 2022-ben felújították. Az épületre 10 cm hőszigetelés és nemes vakolat került, felszerelésre kerültek a napelemek, és két klíma berendezés. Mindkét épületben kicserélték a villamos vezetékeket.
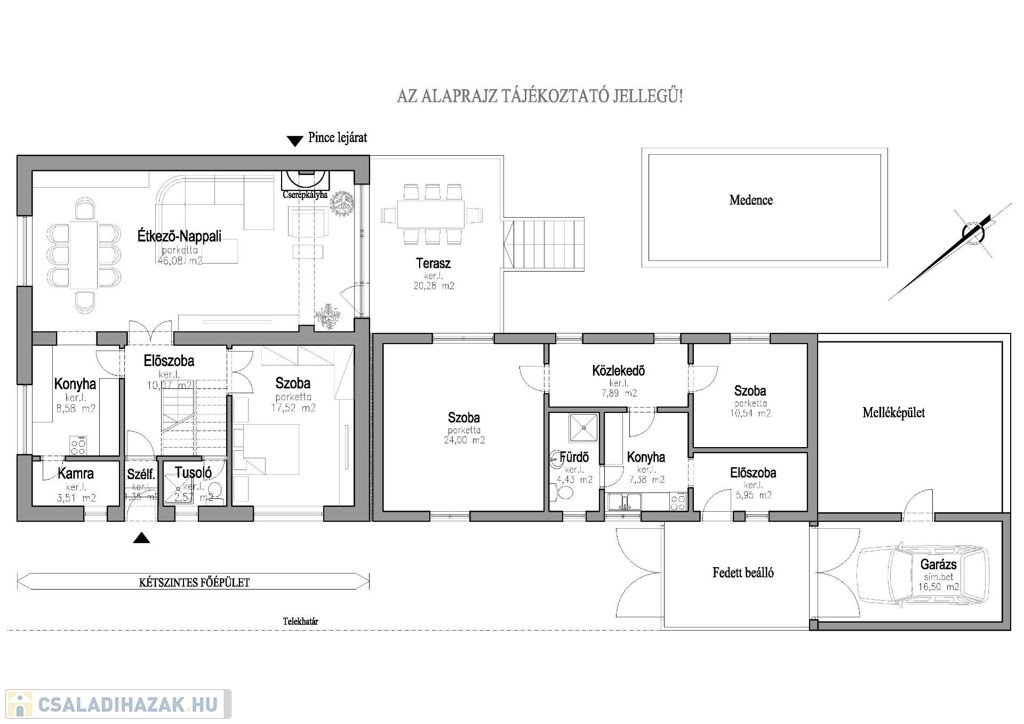
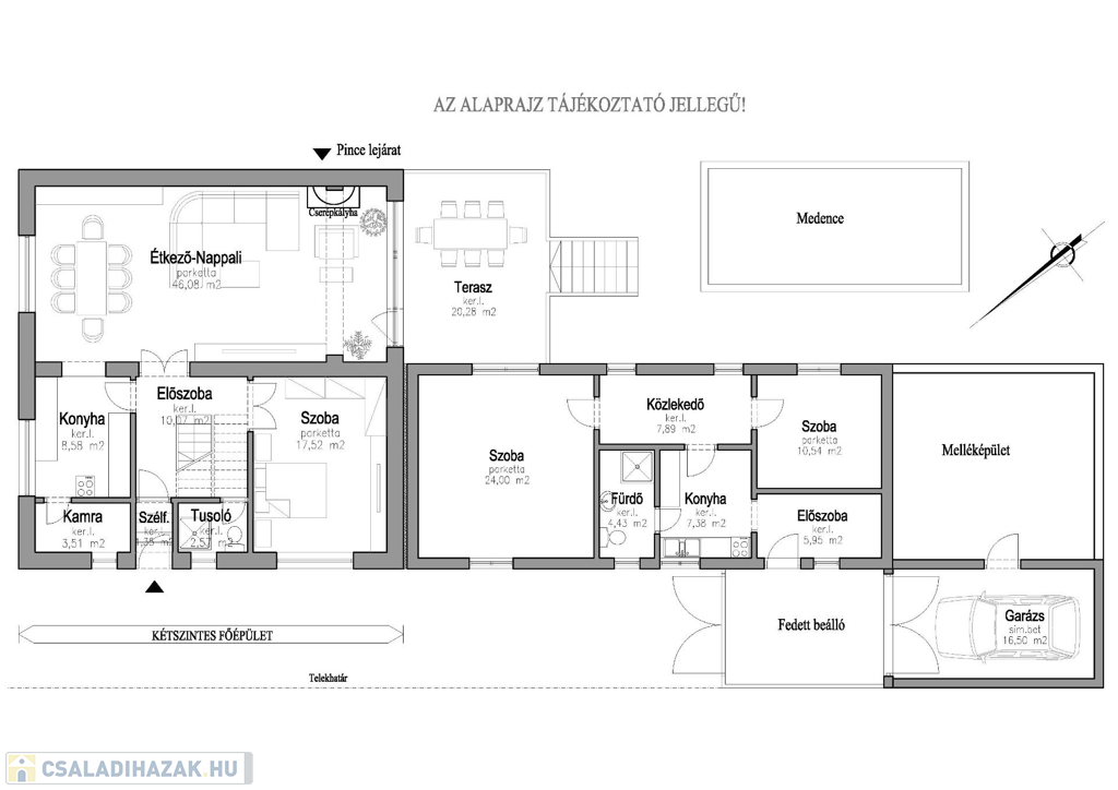
Az Étkező-Nappali alatt pince helyiség található, az épület tetején pedig napozó terasz.
Az ingatlan fűtését központi gázkazán mellett infra fűtés, két klíma berendezés és két cserépkályha is biztosítja.
A Főépülethez csatlakozik, de külön bejárattal rendelkező földszintes tégla lakás 1970 körül épült. Itt két szobát, konyhát , fürdőszobát találunk.
A főépületben a földszinten a Nappali-Étkező helyiséget, hálószobát, konyhát és zuhanyzó helyiséget alakítottak ki. Az emeleten két hálószoba, fürdő, tároló helyiségeket találunk. Az emeleten lévő két erkéllyel is rendelkező 30m2 alapterületű szoba kényelmes két háló kialakítását is lehetővé teszi. ( lásd: alaprajzok)
A remek tájolású udvaron, medencét, sütögető teraszt kemencével, lekerített gyümölcsöst, melléképületet, kiépített kutya kenneleket találunk.
A környéken, bevásárló központok, óvoda, iskola, kórház, gyógyszertár, benzinkút található, pár perces sétával busz és villamos megálló is elérhető.
Néhány információ az ingatlanról:

- Telek: 1082 m2
- Hasznos alapterület: ~218 m2

- Földszint: ~90,00 m2, Konyha,Kamra, Előszoba, Tusoló Wc-vel, Lécső tér,
Étkező-Nappali: ~46,00 m2, Hálószoba: ~17,00 m2, Terasz: ~20,00 m2

- Emelet: ~68,00 m2, Közlekedő, Fürdőszoba, Tároló,
Szoba ~14,60 m2
Szoba: ~30,00 m2, 2 db Erkély : 2x ~8,00 m2

- Pince: ~46,00 m2,

- Földszintes ház: ~60,00 m2, 2 db szoba, konyha, fürdő, közlekedő, előszoba


Az ingatlannal kapcsolatos kérdéseivel várom hívását, a hét bármely napján.

Ügyfeleink számára irodánk teljes jogi hátteret, adás-vétellel kapcsolatos térítésmentes jogi tanácsadást biztosít.
Bank semleges hitelügyintézéssel, díjmentes hitelszűréssel és tanácsadással is hozzájárulunk, hogy megtalálja az ön számára legkedvezőbb megoldást.
(További képekért és információkért kérem hívjon!)

Családi ház részletei

Ár: 215 000 000 Ft
Méret: 218 négyzetméter
Azonosító: 11432080
Irodai azonosító: 567037
Erkély mérete: 8.00 négyzetméter
Telek: 1082 négyzetméter
Ingatlan állapota: Átlagos
Jelleg: családi ház
Építőanyag: Tégla
Fűtés jellege: Cirkó
Egész szobák: 6
Nappalik: 1

Egyéb jellemzők

  • Beépíthető tetőtér
  • Csatorna
  • Garázs
  • Melléképület
  • Pince
  • Terasz

Így keressen családi házat négy egyszerű lépésben. Csupán 2 perc, kötelezettségek nélkül!

Szűkítse a családi házak
listáját
Válassza ki a megfelelő
családi házat
Írjon a hirdetőnek
Várjon a visszahívásra