Eladó családi ház Szeged 199 900 000 Ft

Leírás

BÉKÉS, CSENDES KÖRNYEZETBEN – TELJESEN FELÚJÍTOTT CSALÁDI HÁZ + MELLÉKÉPÜLET ELADÓ SZEGED-BAKTÓN!

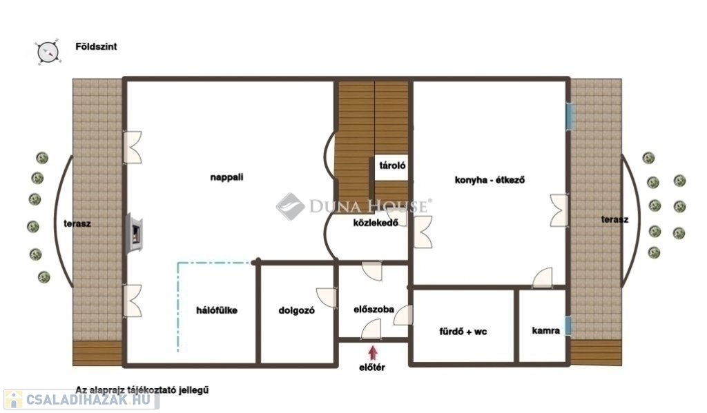
Szeged-Baktó egyik kedvelt utcájában, igényes házak szomszédságában kínálunk eladásra egy napfényes, kétszintes, két különálló lakrésszel rendelkező családi házat, valamint egy 45 m²-es, szintén felújított melléképületet, 1453 m²-es telken.

Főbb jellemzők:

Teljes körű felújítás (2020), korszerű gépészet, hőszigetelt nyílászárók

Két szinten összesen ~166 m² lakótér, külön bejáratú lakrészekkel

Kandalló, gáz cirkó, konvektor, inverteres klíma

Melléképület 2 szobával, konyhával, fürdővel

Szép, parkosított kert automata öntözőrendszerrel, fúrt kúttal

16 m²-es garázs, loggiák, teraszok

Lehetőség 700 m²-es építési telek leválasztására

Nyugodt, zöldövezeti környék, jó infrastruktúrával, kerékpárúttal és buszmegállóval a közelben.

Ideális választás nagycsaládosoknak, összeköltözőknek vagy befektetőknek!

Ha felkeltette érdeklődését, hívjon bizalommal!

Családi ház részletei

Ár: 199 900 000 Ft
Méret: 200 négyzetméter
Azonosító: 11589709
Irodai azonosító: HZ075143-5051470
Cím: Eladó 200 nm-es ház Szeged
Telek: 1453 négyzetméter
Ingatlan állapota:
Jelleg: családi ház
Építőanyag: Tégla
Fűtés jellege: Cirkó
Fűtés módja: Gáz
Kor: 21-50 éves
Szintek száma: Földszintes
Egész szobák: 7
Fél szobák: 1

Térkép


Így keressen családi házat négy egyszerű lépésben. Csupán 2 perc, kötelezettségek nélkül!

Szűkítse a családi házak
listáját
Válassza ki a megfelelő
családi házat
Írjon a hirdetőnek
Várjon a visszahívásra