Eladó családi ház Szeged 180 000 000 Ft

Leírás

AZONNAL KÖLTÖZHETŐ KULCSRAKÉSZ INGATLANOK A HOLT MAROS BRIDGE KÖZELÉBEN!
LEGYEN ÖN AZ ELSŐ LAKÓJA!

CSOK, ÁFA VISSZAIGÉNYLÉS, ILLETÉKMENTESSÉG IGÉNYBE VEHETŐ!

Újszeged családi házas övezetében már csak 2 db utcai, önálló kertkapcsolatos családi ház (egymástól elkülönülve) várja új Tulajdonosát!

Az ingatlanok jellemzői: belső kétszintes, saját kertkapcsolatos, KULCSRAKÉSZ állapotú.

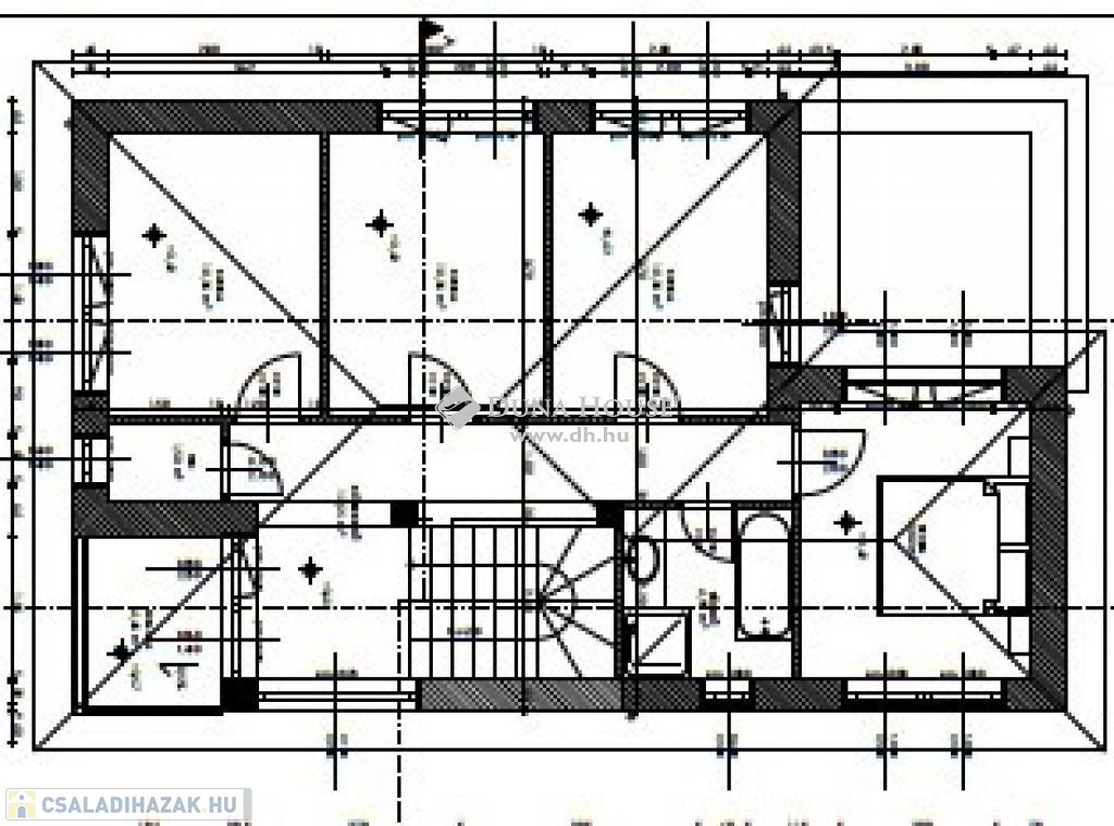
Az előkertes ház 184 m2-es telken épül, ahol amerikai konyha + nappali, 5 szoba, 2 fürdő, 2 toalett, kamra, loggia és terasz kerül kialakításra 96 m2-es saját kertkapcsolattal.

Térfelosztása az alábbi:

Földszint: amerikai konyha + nappali, szoba - mindkét helyiségből a terasz elérhető, kamra, fürdő és a szeparált mellékhelyiség (lakótér: 70,71 m2 + terasz: 11,71 m2).
Emelet: 4 külön bejáratú szoba,, fürdő, szeparált mellékhelyiség és loggia (lakótér: 60,86 m2 + loggia: 4,43 m2).

Össz. terület: 139,655 m2/ buttó: 147,74 m2 ( 1/2 - 1/2 terasz + loggia) + 95,997 m2-es saját kert

Az ingatlanhoz belső udvari dupla garázs tartozik - szekcionált garázskapu - .

Kulcsrakész állapot:

- minőségi külső-, belső nyílászárók (kilincs) motoros redőnnyel
- padlófűtés, mennyezet hűtés
- egyedi hőszivattyús fűtési-hűtési rendszer
- fürdőszoba szaniterek
- prémium minőségű konyhabútor
- belső festés, tapétázás
- VINYL burkolat
- csempe burkolat 60 x 60 cm méretig
- burkolás segédanyag
- villanyszerelés: kapcsolók, konnektorok, világító testek felszerelése
- víz-, csatornahálózat komplettre szerelve
- kiépített riasztórendszer, kaputelefon
- elektromos kapuval felszerelt duplagarázs, garázsbeálló
- elektromos autó töltőoszlopának a kialakítása, felszerelése biztosított
- kiépített napelemes rendszer
- külső vakolás, színezés
- út kialakítása, földfeltöltés
- kapubeálló, wpc kerítés
- telkek közötti elválasztó kerítés kiépítése munkadíj - anyagköltséget nem tartalmazza
- térkő

A minőségi anyagokból, igényesen kivitelezett ingatlan kényelmes és biztonságos otthon kialakítására ad lehetőséget.

Az ingatlan korszerű technológiával, műszaki tartalommal épült.

CSOK, ÁFA VISSZAIGÉNYLÉS, ILLETÉKMENTESSÉG IGÉNYBE VEHETŐ!

Az ingatlan kertvárosias környezetben található, a Belváros néhány perc alatt autóval vagy autóbusszal is elérhető. A Holt-Maros ideális hely futóknak, de aki csak sétálni szeretne virágzó bokrokban, fákban gyönyörködhet.
Remek kikapcsolódási lehetőségeket nyújt a közeli felújított Erzsébet-liget ahol új szabadidős lehetőség érhetőek el a városlakók számára. Szabadtéri edzőtermek, sportpályák, korszerű futópálya várja a sport kedvelőit.


Ha felkeltette érdeklődését bővebb információért HÍVJON vagy keressen személyesen irodánkban!

Forduljon Hozzám, keressen a hét bármely napján bizalommal!
Érd.: Keleti Ilona , Tel.: +36(20)403-3318

Családi ház részletei

Ár: 180 000 000 Ft
Méret: 139 négyzetméter
Azonosító: 11349878
Irodai azonosító: HZ022233-4043394
Telek: 184 négyzetméter
Ingatlan állapota: Átlagos
Jelleg: családi ház
Építőanyag: Tégla
Fűtés jellege: Villany
Fűtés módja: Hőszivattyú
Komfort fokozat: Összkomfort
Kor: Új építésű
Szintek száma: Földszintes
Egész szobák: 1
Fél szobák: 5

Egyéb jellemzők

  • Garázs

Térkép


Így keressen családi házat négy egyszerű lépésben. Csupán 2 perc, kötelezettségek nélkül!

Szűkítse a családi házak
listáját
Válassza ki a megfelelő
családi házat
Írjon a hirdetőnek
Várjon a visszahívásra