Eladó családi ház Szeged 170 000 000 Ft

Leírás

AZONNAL KÖLTÖZHETŐ, ÚJ ÉPÍTÉSŰ, ENERGIATAKARÉKOS, MODERN IKERHÁZ!!!!
Újszeged frekventált utcájában, mégis szinte szomszédmentes nyugodt környezetben, eladásra kínálok egy kétszintes 160nm-es 1104 nm-es ikerházat.
Az ingatlan a legkorszerűbb technikák igénybevételével, minőségi építőanyagokat használva épült, törekedve az energia felhasználás minimalizálására.
Energetikai tanúsítvány: AA++
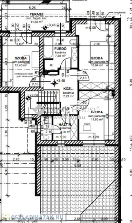
Az ingatlan adatai :Hasznos alapterület: 135,6 nm
terasz :21,74 nm
Emeleti terasz: 11,8 nmgarázs: 20,11 nm
FÖLDSZINT:Napfényes amerikai konyhás nappali (37,47nm) szoba, fürdőszoba, kamra, előtér, fedett nagyméretű terasz.
EMELET:3 hálószoba (12,40, 15,64, 11,60), fürdőszoba, háztartási helyiség, emeleti terasz
Az ikerház mindkét fele eladó így akár egyben is megvásárolható, ha több generáció költözne egymás mellé de mégis külön.
A ház fenntartása rendkívül gazdaságos, a lakók mindennapi kényelmére összpontosítva, jól átgondolva lett kialakítva.
Ajánlom családoknak hiszen minden állami támogatás igénybe vehető rá (5%-os áfa, babaváró, CSOK ami igénybevételével illetékmentesség is jár)!!!!
Várom megkeresését!
Üdvözlettel:
Dömény Kitti
+3630 2916129

Referencia szám: HZ087983

Családi ház részletei

Ár: 170 000 000 Ft
Méret: 170 négyzetméter
Azonosító: 11499506
Irodai azonosító: HZ087983-4884446
Telek: 400 négyzetméter
Ingatlan állapota: Átlagos
Jelleg: ikerház
Építőanyag: Tégla
Fűtés jellege: Cirkó
Fűtés módja: Gáz
Kor: Új építésű
Szintek száma: Földszintes
Egész szobák: 6

Térkép


Így keressen családi házat négy egyszerű lépésben. Csupán 2 perc, kötelezettségek nélkül!

Szűkítse a családi házak
listáját
Válassza ki a megfelelő
családi házat
Írjon a hirdetőnek
Várjon a visszahívásra