Eladó családi ház Szeged 144 000 000 Ft

Leírás

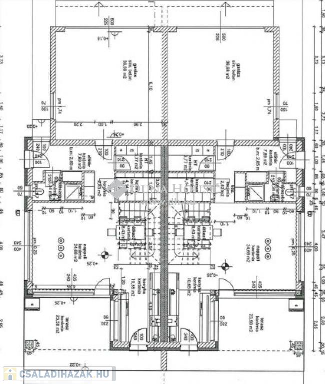
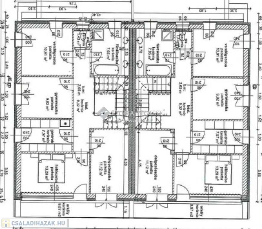
EXKLUZÍV KÖRNYEZET, MINIMÁL STÍLUS!Újszeged dinamikusan fejlődő, kedvelt kertvárosi övezetében EMELT SZINTŰ SZERKEZETKÉSZ, belső kétszintes, saját kertkapcsolatos, prémium kategóriájú, minimál stílusú, család ház jellegű ikerház egyik fele eladó.Az ingatlan korszerű technológiával, műszaki tartalommal épült. Kivitelezését az igényesség és a modern stílus jellemzi.Az ikerház egymással érintkező falfelülete külön fallal rendelkezik, közte dupla szigeteléssel. Az épület kertre néző 452 m2-es telken épült, ahol amerikai konyha+nappali, 4 szoba, gardrób szoba, tágas, fedett terasz, erkély és dupla garázs kerül kialakításra.A lépcsőház felett felülvilágító kupola (lapostető) gondoskodik a természetes megvilágításról.Térfelosztása az alábbi:Földszint: amerikai konyha+nappali, innen nyílik a terasz, kamra, háztartási helyiség, fürdő, közlekedő, előtér, garázs (lakótér - 65,72 m2, fedett terasz 23,58 m2, garázs 36,68 m2).Emelet: 4 szoba, gardrób, fürdő, wc, közlekedő, erkély ( lakótér - 71,17 m2, erkély 9,97 m2).Össz terület: 153,655 m2 (1/2-1/2 terasz és erkély) + 36,68 m2 garázs = 190,335 m2.Műszaki jellemzők- Falazáshoz felhasznált anyagok: Wienerberger Porotherm X-Therm okostégla, gipszes vakolat- Két rétegben glettelt és festett falak- 22 cm-es monolit vasbeton födém ( záró szintes is)- Homlokzati nyílászárók: 76 mm-es, 6 kamrás, antracit színű (belső oldalán fehér) műanyag nyílászárók 3 rétegű üvegezéssel (üveg: U 0,6 W/m2K)- Homlokzatburkolat: 15 cm-es EPS homlokzati hőszigetelés 1,5 mm-es fehér műgyantás nemesvakolat ill. Travertin mészkő burkolattal- Travertin mészkő burkolat, mészkő könyöklő- Üvegkorlát: két rétegű, edzett üvegkorlát a teraszon és az emeleti nyílászárókon (franciaerkélyeken)- Kamera -és riasztórendszer kiépítése (3 db kamera és mozgásérzékelő rendszer)- Video kaputelefon, TV internet előkészítés- Elektromos rendszer: elektromos vezetékek védőcsövekben, Split klíma előszerelése a nappaliban és az emeleti hálószobában, elektromos redőny előkészítés.- Fűtésrendszer: 24 kW-os tározós, kondenzációs gázkazán, melegvíz cirkulációs vezeték, padlófűtés minden helyiségben (kivéve kamrában). Fürdőszobában törölköző szárító radiátor. Gázterv engedélyeztetés.- Napelem: 5 kW-os napelem rendszer (várható éves termelés: 5.140 kWh, kiváltott havi áramszála összege: 16.277,- Ft)- Garázs: kétállásos, padlófűtéssel és vízvételi lehetőséggel ellátott garázs- Garázskapu: elektromos, hőszigetelt Hörmann RenoMatic Planar garázskapu 40 mm PIR hőszigeteléssel, matt Delux antracit színű borítással, (RAL 7016), ugrókódos rádiós rendszer, BluetoothMinőségi anyagok, minőségi kivitelezés.Ajánlom azoknak, akik elegáns, modern álomotthont szeretnének ahol minden a magas színvonalat és letisztultságot sugározza.Ha felkeltette érdeklődését bővebb információért forduljon hozzám, keressen a hét bármely napján bizalommal!VÁSÁROLJON SZAKÉRTŐN KERESZTÜL!

Családi ház részletei

Ár: 144 000 000 Ft
Méret: 190 négyzetméter
Azonosító: 11571340
Irodai azonosító: HZ093902-4629490
Telek: 452 négyzetméter
Ingatlan állapota: Épülő
Jelleg: ikerház
Építőanyag: Tégla
Fűtés jellege: Cirkó
Fűtés módja: Gáz
Komfort fokozat: Dupla komfort
Kor: Új építésű
Szintek száma: Földszintes
Egész szobák: 2
Fél szobák: 3

Egyéb jellemzők

  • Garázs

Térkép


Így keressen családi házat négy egyszerű lépésben. Csupán 2 perc, kötelezettségek nélkül!

Szűkítse a családi házak
listáját
Válassza ki a megfelelő
családi házat
Írjon a hirdetőnek
Várjon a visszahívásra