Eladó családi ház Szeged 144 000 000 Ft

Leírás

Eladó prémium kivitelezésű családi ház,Újszeged zöldövezeti részén, csendes utcában!
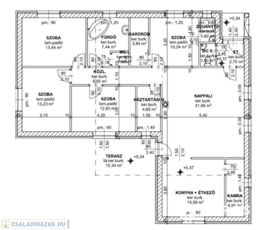
Az ingatlan mind tervezésében, valamint kivitelezésében megfelel a legmagasabb minőségi elvárásoknak, a 2.307 négyzetméteres telken épült 168 négyzetméteres családi ház (147 m2 lakótér + 50 m2 terasz + 30 m2 lakható melléképület.
- 42 m2 garázs, ára: 15.000.000,-Ft.
Ideális választás nagycsaládosok, illetve tágas tereket igénylők számára is, hiszen 4 hálószobás elrendelkezésével minden lakónak lehetőséget ad a privát szférára. Ráadásul egy dupla garázs biztosítja, hogy mindig kényelmesen parkolhasson.
A lakók kényelmét szolgálja továbbá a fedett grillterasz és szauna, hogy nap mint nap kihasználhassa a ház nyújtotta lehetőségeket a pihenésre és kikapcsolódásra.

Az ingatlan főbb jellemzői:
- telek: 2.307 négyzetméter
- lakótér: 147 négyzetméter
- konyha + nappali + 4 hálószoba + 2 fürdő + 2 kükön wc
- fedett terasz
- garázs + elektromos garázsajtó
- szauna
- Építés éve: 2023
- új villamoshálózat
- riasztórendszer
- Légkondi
- tégla falazat + szigetelés
- hőszivattyús fűtés + napelem
- prémium anyagok + dekor világítás
- fúrt kút
- parkosított udvar + grillező + lakható melléképület

Bármely kérdés felmerül önben az ingatlannal kapcsolatban, hívjon bizalommal, a 06 30 2490482 tel. számon.
dr. Vass Zoltán
(További képekért és információkért kérem hívjon!)

Családi ház részletei

Ár: 144 000 000 Ft
Méret: 168 négyzetméter
Azonosító: 11558643
Irodai azonosító: 826520
Erkély mérete: 42.00 négyzetméter
Telek: 2308 négyzetméter
Ingatlan állapota: Kitűnő
Jelleg: családi ház
Építőanyag: Tégla
Fűtés jellege: Hőszivattyú
Egész szobák: 5
Nappalik: 1

Egyéb jellemzők

  • Beépíthető tetőtér
  • Csatorna
  • Garázs
  • Melléképület
  • Pince
  • Terasz

Így keressen családi házat négy egyszerű lépésben. Csupán 2 perc, kötelezettségek nélkül!

Szűkítse a családi házak
listáját
Válassza ki a megfelelő
családi házat
Írjon a hirdetőnek
Várjon a visszahívásra