Eladó családi ház Szeged 142 900 000 Ft

Leírás

IKERHÁZ ELADÓ SZEGED TÁPÉN SZERKEZETKÉSZ ÁLLAPOTBAN

Szeged egyik kedvelt városrészében, Tápén kínálok megvételre egy kétlakásos, tégla építésű ikerház egyik felét, amely a modern otthonok minden elvárásának megfelel.

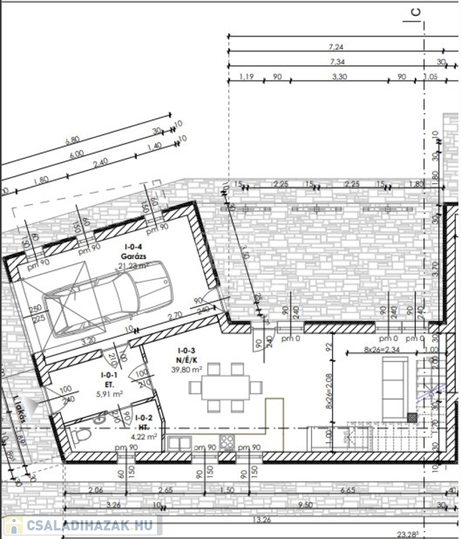
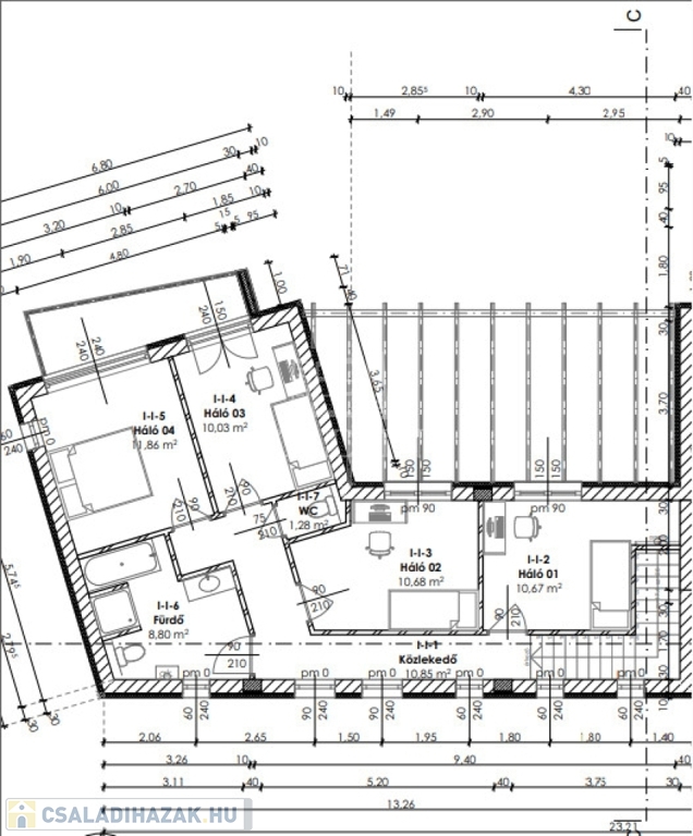
Az ingatlan nettó 135,33m², alapterületű, melyet tovább növel a 6 m²-es erkély és a 30 m²-es terasz, ideális teret biztosítva a pihenéshez és a családi együttlétekhez. Az alaprajz a hirdetés mellékleteként elérhető.

Az ingatlan szerkezetkész állapotban kerül értékesítésre, így a végső kialakítás teljes mértékben az új tulajdonos ízlését és igényeit tükrözheti.

Kiemelkedő műszaki tartalom

30 cm PTH tégla falazat

12 cm külső hőszigetelés

Prémium minőségű, 3 rétegű, 6 légkamrás nyílászárók

kívül dió, belül fehér kivitelben


Padlófűtés hőszivattyús rendszerrel

Helyiségenként szabályozható hűtés hőszivattyúval

H tarifás áram


Szerkezetkész állapot részletei

Glettelt falak, festésre előkészítve

Komplett villanyszerelés (szerelvények nélkül)

Napelem előkészítés

PANASONIC hőszivattyús fűtés–hűtés rendszer

Elektromos árnyékolástechnika: redőnyök és zsalúziák

Térkövezett udvar


Az ár nem tartalmazza

Beltéri ajtók és kilincsek

Kapcsolók, lámpák, aljzatok

Hideg- és melegburkolatok

Szaniterek


Ez az ingatlan ideális választás azok számára, akik modern, energiatakarékos és hosszú távon értékálló otthont keresnek Szeged egyik jól megközelíthető, mégis nyugodt környezetében.

További információért és megtekintésért keressen bizalommal!

Családi ház részletei

Ár: 142 900 000 Ft
Méret: 135 négyzetméter
Azonosító: 11588084
Irodai azonosító: 390877
Cím: Tápé kedvelt részén
Telek: 600 négyzetméter
Ingatlan állapota: Kitűnő
Jelleg: ikerház
Építőanyag: Tégla
Fűtés jellege: Geotermikus
Fűtés módja: Hőszivattyú
Komfort fokozat: Összkomfort
Kor: Új építésű
Szintek száma: 1 szint
Egész szobák: 5

Egyéb jellemzők

  • Csatorna
  • Garázs
  • Pince
  • Terasz

Térkép


Így keressen családi házat négy egyszerű lépésben. Csupán 2 perc, kötelezettségek nélkül!

Szűkítse a családi házak
listáját
Válassza ki a megfelelő
családi házat
Írjon a hirdetőnek
Várjon a visszahívásra