Eladó családi ház Szeged 139 800 000 Ft

Leírás


Eladó Szegeden a Liliom lakókertben (Béketelepen) egy igényes, 2020-ban épült, modern, téglaépítésű családi ház.

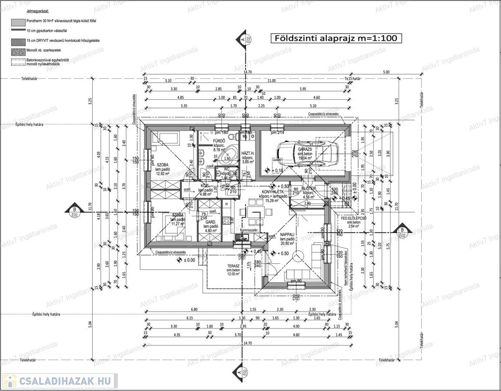
A ház kiváló minőségű, prémium anyagokból készült, és magas műszaki tartalommal rendelkezik. Az 88 m2 alapterületű lakórész elrendezése praktikus: előszoba, amerikai konyhás étkező-nappali, 2 hálószoba, gardrób, háztartási helyiség, vendég WC, valamint egy tágas fürdőszoba káddal, zuhanyzóval és WC-vel. A házhoz tartozik egy 19 m²-es garázs, mely közvetlen bejárással kapcsolódik a lakóterülethez, illetve egy 30 m²-es fedett terasz, mely részben üvegezett, szigetelt, másik része pedig nyitott, autóbeállóval bővítve.

A ház modern felszereltséggel rendelkezik: Bosch kondenzációs kazán padlófűtéssel és okos vezérléssel, központi hővisszanyerős szellőztetőrendszer, 2 darab Panasonic hűtő-fűtő klíma, vízlágyító berendezés, 8 kamerás biztonsági rendszer és riasztó. A beépített konyhabútor minőségi kivitelezésű, Whirlpool gépekkel felszerelt (sütő, mikró, mosogatógép, indukciós főzőlap).

A 840 m2 alapterületű telek rendezett, kerítéssel körülvett, az előkertben 2 elektromos tolókapu található, amelyek a garázshoz és a fedett gépkocsibeállóhoz biztosítanak bejárást. A kert részben térkövezett, részben füvesített, öntözőrendszerrel, melyet fúrt kút és szivattyú működtet. A telken található egy 16 m²-es tároló és egy 28 m²-es szigetelt faház, melyben külön mosdó

és WC is található, fűtéséről pedig egy harmadik klíma gondoskodik.

Az ingatlan csendes, családias, kertvárosi környezetben helyezkedik el, mégis közel a városközponthoz, ideális választás lehet olyan családok számára, akik nyugodt, természetközeli életet szeretnének élni, de fontos számukra a város közelsége.



Amennyiben bármilyen kérdése felmerül az ingatlannal kapcsolatban, kérem, keressen elérhetőségeim valamelyikén.

Családi ház részletei

Ár: 139 800 000 Ft
Méret: 122 négyzetméter
Azonosító: 11577351
Irodai azonosító: 675301087
Telek: 840 négyzetméter
Ingatlan állapota: Kitűnő
Jelleg: családi ház
Építőanyag: Tégla
Fűtés jellege: Egyéb
Komfort fokozat: Összkomfort
Egész szobák: 3

Így keressen családi házat négy egyszerű lépésben. Csupán 2 perc, kötelezettségek nélkül!

Szűkítse a családi házak
listáját
Válassza ki a megfelelő
családi házat
Írjon a hirdetőnek
Várjon a visszahívásra