Eladó családi ház Szeged 124 900 000 Ft

Leírás


Legyen a szomszédom! – Az utolsó elérhető házak egyike a Liliom Lakópark főutcáján



13 éve élek a családommal a Liliom Lakóparkban.

Nem térképről és nem prospektusból ismerem a környéket – hanem a mindennapokból.

Ha szeretné, szívesen elmondom, milyen itt élni.



Szegeden, a Liliom Lakóparkban, a Vinkler László úton kínálom megvételre ezt az új építésű, önálló házat, amelynek ikerpárja is eladó.



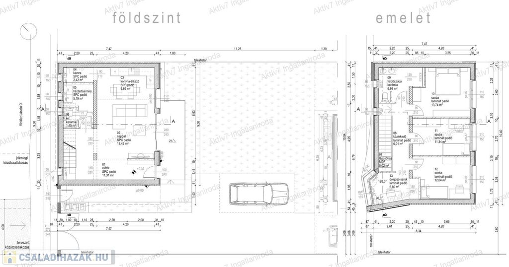
Főbb jellemzők:



- 205 m² saját használatú telekrész (a teljes telek 700 m²)

- 110,4 m² hasznos alapterület



- nappali + 3 hálószoba + dolgozó

- fürdőszoba az emeleten,

- külön WC kézmosóval a földszinten

- nincs közös fal a szomszéddal, a másik épület 12 méter távolságra

- buszmegálló közvetlenül a ház előtt



Műszaki tartalom – röviden:



- kulcsrakész kivitelezés

- tégla falazat, 10 cm vastag polisztirol hőszigeteléssel

- alacsony rezsi a modern hőszivattyús fűtési rendszernek köszönhetően.

- burkolatok-, ajtók-, szaniterek választhatók, igény szerint módosíthatók



A négy egymás melletti telken összesen 8 új ház épül, ezek közül már csak az én hirdetéseimben szereplő ingatlanok eladóak!



A közelben épülő BYD szegedi autógyár miatt a környék nemcsak otthonként, hanem hosszabb távú befektetésként is értelmezhető.



Ha kérdése van, vagy személyesen is megnézné a helyszínt, hívjon bizalommal.

Családi ház részletei

Ár: 124 900 000 Ft
Méret: 110 négyzetméter
Azonosító: 11608621
Irodai azonosító: 675301155
Cím: Vinkler László út
Telek: 205 négyzetméter
Ingatlan állapota: Épülő
Jelleg: családi ház
Építőanyag: Tégla
Kor: Új építésű
Egész szobák: 4

Így keressen családi házat négy egyszerű lépésben. Csupán 2 perc, kötelezettségek nélkül!

Szűkítse a családi házak
listáját
Válassza ki a megfelelő
családi házat
Írjon a hirdetőnek
Várjon a visszahívásra