Eladó családi ház Szeged 119 900 000 Ft

Leírás



IDE CSAK KÖLTÖZNI KELL!
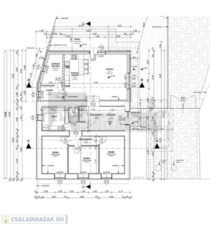
Szeged kertvárosi részén , Petőfi telep és Tápé határán , a Zágráb utcában , 500 m2-es telken épült , 122m2-es , nappali + 3 szobás ,kulcsrakész, családi ház eladó.
Az eredetileg 1000m2-es telek belső részében épült egy új családi ház , ez az utcafronti épület ,amelyet pedig teljes körűen , felújítottak és bővítettek.
Jelenleg már elkészült, kulcsrakész családi ház —külső vakolat , hőszigetelés , műanyag hőszigetelt ablakok , ajtók , napelem 4kw, fűtésrendszer, fan-coil , hőszivattyú , teljes kiépített villamos hálózat-szerelvényekkel , kiépített szellőzőrendszer , megépített kerítés ....
Elrendezését tekintve: három külön nyíló szoba , fürdőszoba , vendég mosdó , tágas előszoba és a napfényes amerikai konyhás nappali , közvetlen terasz és kertkapcsolattal és a gondos tervezésnek köszönhetően , külön helyiségben még , kamra és háztartási/ gépészeti helyiségnek is jutott hely.
Kulcsra kész előtti állapot : új konyhabútor , háztartási gépekkel , a szobákban padlószőnyeg
a további helyiségekben vinil burkolat van , már a függönyök és a csillárok is fel vannak szerelve.
Ide tényleg csak költözni kell !
Kulcsra kész állapot : 119 900 000 Ft
Kiváló lokáció , kertvárosi környezet , nagyszerű ajánlat !

Jöjjön el , nézze meg , tegyen ajánlatot !
Hívjon bizalommal, akár hétvégén is !

Családi ház részletei

Ár: 119 900 000 Ft
Méret: 122 négyzetméter
Azonosító: 11579634
Irodai azonosító: 123232
Cím: Szeged
Ingatlan állapota: Felújított
Jelleg: családi ház
Építőanyag: Kérdezzen rá a hirdetőtől »
Fűtés jellege: Cirkó
Egész szobák: 4

Egyéb jellemzők

  • Terasz

Így keressen családi házat négy egyszerű lépésben. Csupán 2 perc, kötelezettségek nélkül!

Szűkítse a családi házak
listáját
Válassza ki a megfelelő
családi házat
Írjon a hirdetőnek
Várjon a visszahívásra