Eladó családi ház Szeged 120 000 000 Ft

Leírás

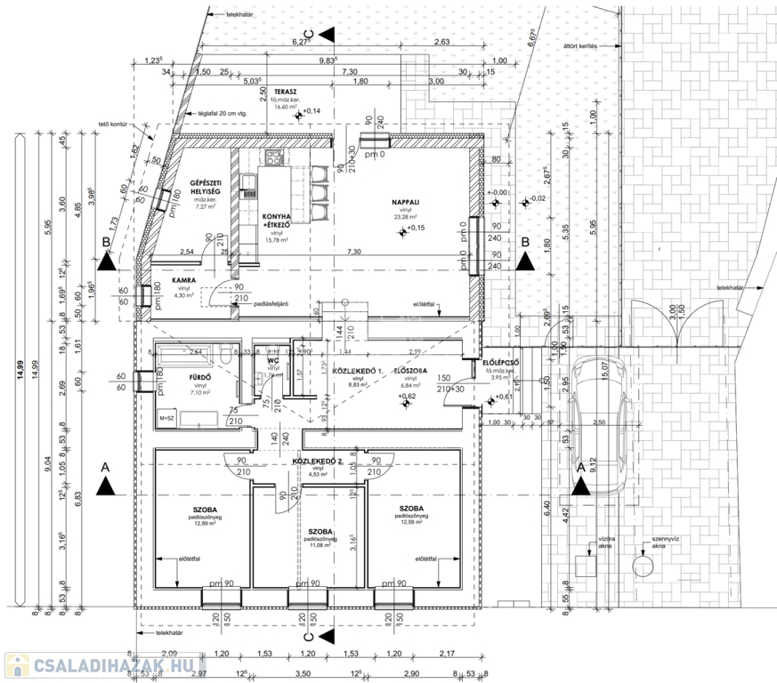
Igényes kivitelezéssel készült, azonnal költözhető családi ház eladó Szeged-Tápén

Szeged-Tápé csendes, kertvárosias részén, a Zágráb utcában kínálunk megvételre egy 116 m²-es, új építésű (egy falat kivéve) családi házat, amely azonnal költözhető állapotban várja új tulajdonosát.

Az ingatlan egy összesen 1014 m²-es telken helyezkedik el, amely két különálló lakóegységre lett megosztva. A hirdetett ház az utcafronti épület, önálló, jól elszeparált, 504 m²-es telekrésszel.

Főbb jellemzők

- 116 m² lakótér
- 504 m² saját telek
- nappali + 3 külön nyíló hálószoba
- amerikai konyhás nappali
- fürdőszoba WC-vel + külön WC
- gépészeti helyiség + kamra
- 16 m²-es terasz
- saját kertkapcsolat
- saját gépkocsi beálló
- e-autó töltési kiállás

Műszaki tartalom

Az ingatlan építése során korszerű, energiahatékony megoldások kerültek beépítésre:

- tégla szerkezet
- hőszigetelt homlokzat
- korszerű műanyag nyílászárók
- hőszivattyús fűtési rendszer (fan-coil)
- automata szellőző rnedszer
- napelemes rendszer
- modern, új építésű lakórész

Az épület egy fal kivételével teljesen új építésű, a kialakítás a mai igényeknek megfelelő.

Elrendezés és kialakítás

A tervezés során kiemelt figyelmet kapott a funkcionalitás:

- a 3 hálószobás, privát zóna jól elkülönül
- a tágas nappali-konyha-étkező ideális családi és baráti együttlétekhez
- a nappaliból közvetlen kijárat nyílik a teraszra és a kertbe
- a hátsó kertrész további, jól használható privát teret biztosít

Elhelyezkedés
- csendes, nyugodt környezet
- kiváló közlekedés
- óvoda, iskola, bolt a közelben
- kertvárosias, családbarát övezet

További információért keressen bizalommal!

Családi ház részletei

Ár: 120 000 000 Ft
Méret: 116 négyzetméter
Azonosító: 11607804
Irodai azonosító: 393987
Cím: Gyönyörű új családi ház Tápén
Telek: 504 négyzetméter
Ingatlan állapota: Felújított
Jelleg: családi ház
Építőanyag: Tégla
Fűtés jellege: Geotermikus
Fűtés módja: Hőszivattyú
Komfort fokozat: Összkomfort
Kor: 1-5 éves
Szintek száma: Földszintes
Egész szobák: 4

Egyéb jellemzők

  • Csatorna
  • Garázs
  • Pince
  • Terasz

Térkép


Így keressen családi házat négy egyszerű lépésben. Csupán 2 perc, kötelezettségek nélkül!

Szűkítse a családi házak
listáját
Válassza ki a megfelelő
családi házat
Írjon a hirdetőnek
Várjon a visszahívásra