Eladó családi ház Szeged 112 000 000 Ft

Leírás


Legyen a szomszédom! – Az utolsó elérhető ház ebben a projektben a Liliom Lakópark főutcáján



13 éve élek a családommal a Liliom Lakóparkban.

Nem térképről és nem prospektusból ismerem a környéket – hanem a mindennapokból.

Ha szeretné, szívesen elmondom, milyen itt élni.



Szegeden, a Liliom Lakóparkban, a Vinkler László utcában kínálom megvételre ezt az új építésű, önálló házat, amelynek ikerpárja már elkelt.



Főbb jellemzők:



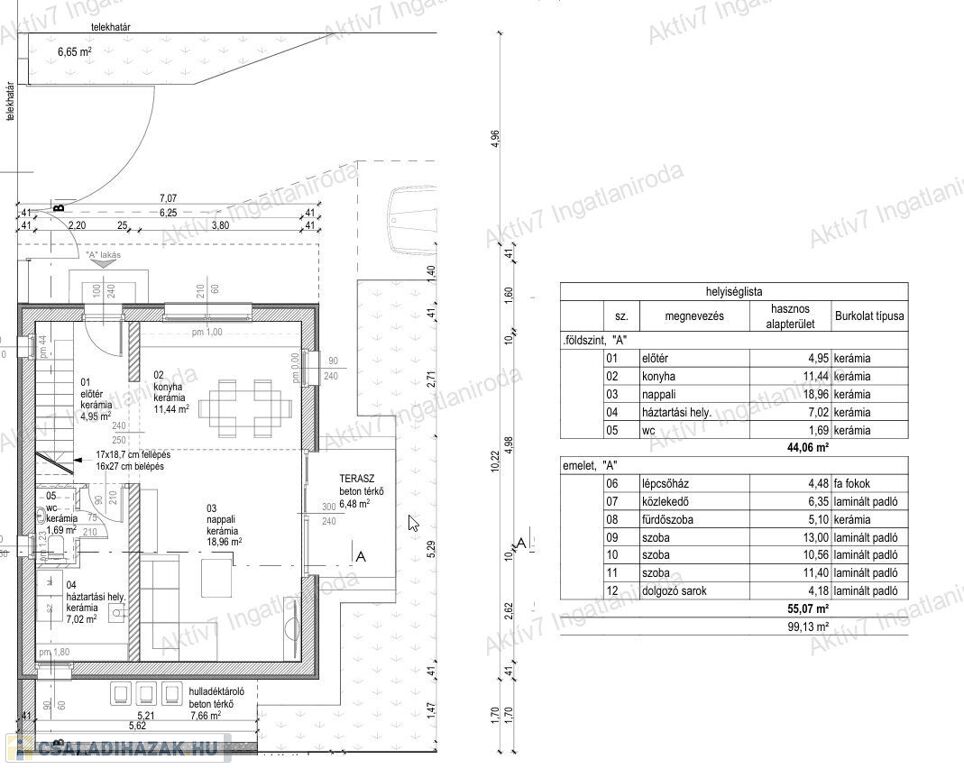
- 315 m² saját használatú telekrész (a teljes telek 676 m²)

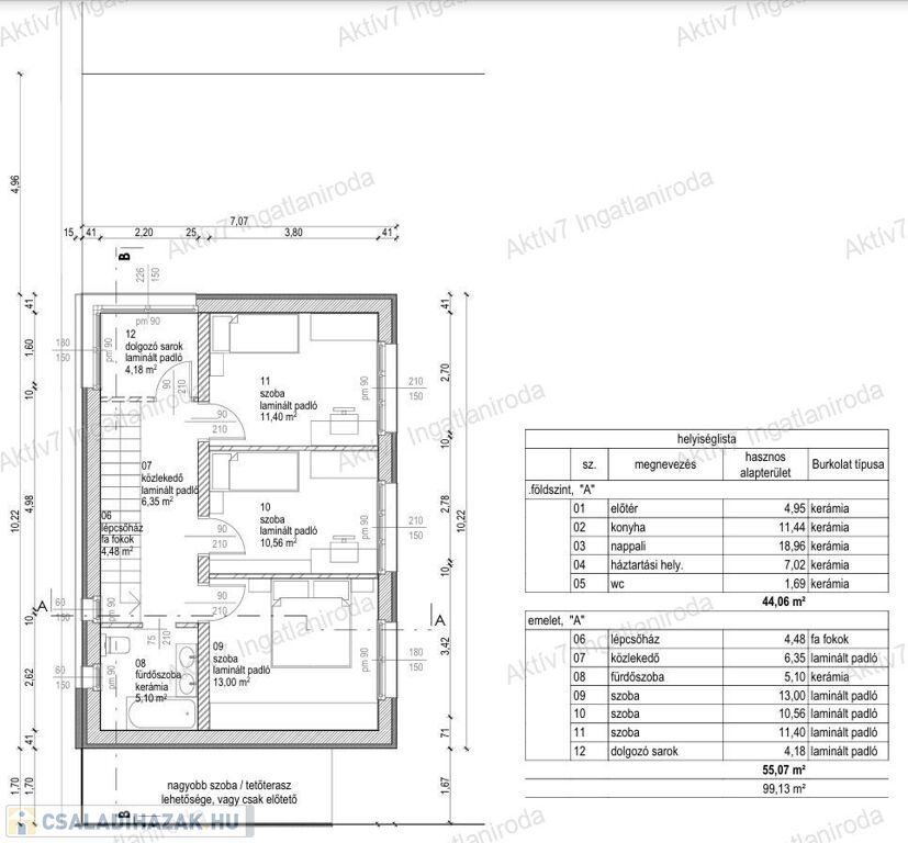
- 99,13 m² hasznos alapterület



- nappali + 3 hálószoba

- fürdőszoba az emeleten,

- külön WC kézmosóval a földszinten

- nincs közös fal a szomszéddal

- tetőterasz vagy nagyobb emeleti szoba kialakításának lehetősége

- buszmegálló közvetlenül a ház előtt



Műszaki tartalom – röviden:

-

- kulcsrakész kivitelezés

- tégla falazat, korszerű hőszigeteléssel

- alacsony rezsi a modern hőszivattyús fűtési rendszernek köszönhetően.

- burkolatok-, ajtók-, szaniterek választhatók, igény szerint módosíthatók



A négy egymás melletti telken összesen 8 új ház épül, ezek közül már csak a hirdetéseimben szereplő ingatlanok eladóak!



A közelben épülő BYD szegedi autógyár miatt a környék nemcsak otthonként, hanem hosszabb távú befektetésként is értelmezhető.



Ha kérdése van, vagy személyesen is megnézné a helyszínt, hívjon bizalommal.

Családi ház részletei

Ár: 112 000 000 Ft
Méret: 99 négyzetméter
Azonosító: 11601581
Irodai azonosító: 675301141
Cím: Vinkler László út
Telek: 315 négyzetméter
Ingatlan állapota: Kitűnő
Jelleg: családi ház
Építőanyag: Tégla
Kor: Új építésű

Így keressen családi házat négy egyszerű lépésben. Csupán 2 perc, kötelezettségek nélkül!

Szűkítse a családi házak
listáját
Válassza ki a megfelelő
családi házat
Írjon a hirdetőnek
Várjon a visszahívásra