Eladó családi ház Szeged 108 000 000 Ft

Leírás

ELADÓ CSALÁDI HÁZ TÁPÉN

Az ingatlan Szeged-Tápé kedvelt, jó közlekedési adottságokkal rendelkező részén található, csendes, nyugodt övezetben.Óvoda,iskola,bolt, játszótér elérhető közelségben.

Az egybefüggő, közművesített telek mérete 1014 m2, melyre két önálló, egymástól jól elszeparált, magas minőségű családi ház épül. Ez a szóban forgó ingatlan, az utcafronti épület,amely felújításra és bővítésre kerül, maximálisan igazodva a mai kor igényeihez. Hőszigetelt homlokzattal, korszerű műanyag nyílászárókkal, hőszivattyúval és napelemes rendszerrel.

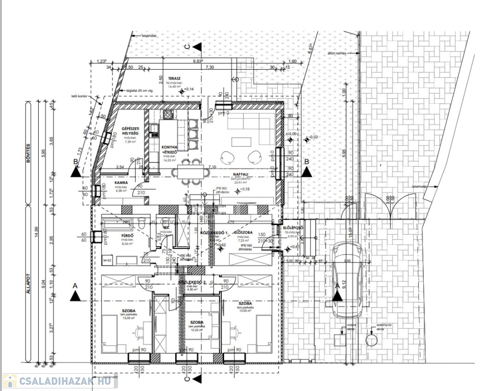
Az épület áttervezése során fő szempont volt, hogy tágas, jól átgondolt terek kerüljenek kialakításra, ezért a privát, 3 hálószobával rendelkező intim, pihenő zóna jól elkülönül a vendégek fogadására is alkalmas amerikai konyhás nappalitól.
A házba belépve egy nagyméretű előszoba-közlekedőbe érkezünk, mely az épület központi részét képezi, rengeteg tárolási lehetőséget biztosítva. Innen nyílik a külön WC helyiség,a tágas fürdő, a hálók és a szinteltolásos, modern nappali-konyha-étkező is, ahol még kialakításra kerül a kamra és a gépészeti helyiség. Az épület ezen része teljesen új építésű.
A nappaliból tudunk kilépni a privát kertrésszel rendelkező teraszra, mely nyaranta ideális helyszín pihenésre, étkezésre.
Az ingatlanhoz tartozik még egy hátsó kertrész is,mely jól elkülönül a másik lakóháztól, ezzel is egy intimebb teret biztosítva akár családi-baráti összejövetelekhez.

Az épület emelt szintű szerkezetkész állapotban került megépítésre, értékesítésre. Igény szerint van lehetőség a kulcsrakész befejezésre, melyet igénytől függően 200eFt/m2 körüli áron vállal a kivitelező.


További információért keressen bizalommal!

Családi ház részletei

Ár: 108 000 000 Ft
Méret: 116 négyzetméter
Azonosító: 11300986
Irodai azonosító: 359595
Cím: Tápé kedvelt részén eladó ház
Telek: 504 négyzetméter
Ingatlan állapota: Átlagos
Jelleg: családi ház
Építőanyag: Tégla
Fűtés jellege: Geotermikus
Fűtés módja: Hőszivattyú
Komfort fokozat: Összkomfort
Kor: 1-5 éves
Szintek száma: Földszintes
Egész szobák: 4

Egyéb jellemzők

  • Csatorna
  • Garázs
  • Pince
  • Terasz

Térkép


Így keressen családi házat négy egyszerű lépésben. Csupán 2 perc, kötelezettségek nélkül!

Szűkítse a családi házak
listáját
Válassza ki a megfelelő
családi házat
Írjon a hirdetőnek
Várjon a visszahívásra