Eladó családi ház Százhalombatta 79 900 000 Ft

Leírás

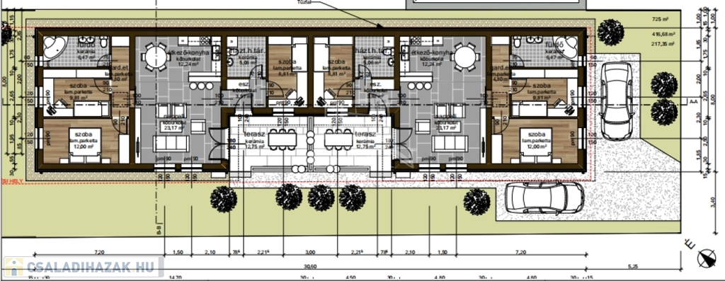
ÚJ ÉPÍTÉSŰ IKERHÁZ ELSŐ LAKÁSA ELADÓ – SZÁZHALOMBATTA CSENDES, KERTVÁROSI RÉSZÉN!

Eladó egy 752 m²-es telken épülő ikerház első lakása — a hátsó lakás már gazdára talált!
A lakáshoz saját kert és gépkocsibeálló is tartozik, így a kényelmes, családbarát élet minden feltétele adott.

✨ Főbb jellemzők:

Földszinti, tágas elrendezés

Nappali–étkező–konyha egy légtérben

3 külön nyíló szoba

Fürdőszoba, előszoba, gardrób, előtér

Közvetlen terasz- és kertkapcsolat a nappaliból

Modern és energiatakarékos kivitel:

Hőszivattyús fűtés – alacsony fenntartási költség

Műanyag, hőszigetelt nyílászárók szellőzőelemekkel

Minőségi belső ajtók: fém tokos, fa ajtólapos kivitel (tömör és üvegezett változatban)

Burkolatok:

vizes helyiségekben csúszásmentes lapburkolat

szobákban laminált parketta

lépcső és közlekedők: csúszásmentes kerámia

falakon 2 m magasságig csempeburkolat

Otthon, ahol minden részlet a kényelmet szolgálja

Modern technológia, átgondolt alaprajz, csendes környezet – ideális választás családoknak és pároknak egyaránt!

Érdeklődj most, és legyen ez az otthon a Tiéd, mielőtt elkészül!

Jöjjön el - nézze meg - és költözzön be karácsonyra!

INGYENES hitel tanácsadás, CSOK Plusz ügyintézés!
BANKFÜGGETLEN hitelcentrumunk az összes elérhető bank és hitelintézet ajánlatát versenyezteti az Ön kedvéért, ráadásul DÍJMENTESEN.

- Egyedi, bankfiókban nem elérhető kamat- és díjkedvezmények
- Hitelképesség vizsgálat
- Idő, energia és pénz megtakarítás
- Teljes hivatali ügyintézés

Amennyiben hirdetésem felkeltette az érdeklődését vagy egyéb információra van szüksége, hívjon bizalommal!

Családi ház részletei

Ár: 79 900 000 Ft
Méret: 86 négyzetméter
Azonosító: 11571953
Irodai azonosító: 388375
Cím: Ikerház 3 %-os hitellel!
Telek: 752 négyzetméter
Ingatlan állapota: Kitűnő
Jelleg: ikerház
Építőanyag: Tégla
Fűtés jellege: Geotermikus
Fűtés módja: Hőszivattyú
Komfort fokozat: Összkomfort
Kor: Új építésű
Szintek száma: Földszintes
Egész szobák: 2
Fél szobák: 2

Egyéb jellemzők

  • Csatorna
  • Garázs
  • Pince
  • Terasz

Térkép


Így keressen családi házat négy egyszerű lépésben. Csupán 2 perc, kötelezettségek nélkül!

Szűkítse a családi házak
listáját
Válassza ki a megfelelő
családi házat
Írjon a hirdetőnek
Várjon a visszahívásra