Eladó családi ház Szászberek 88 000 000 Ft

Leírás

A Szolnoki CasaNetWork Ingatlaniroda megvételre kínál Szászbereken tégla építésű családi házat! Falusi CSOK igénybevehető!

Szászberek dinamikusan fejlődő település, Szolnoktól 20 km-re fekszik, az M4-s autóút néhány perc menetidővel elérhető.
A közbiztonság kiemelkedően jó, a településen magas színvonalú általános iskola működik, óvoda, bölcsőde szintén van a településen.
Mind a műszaki, technológiai megvalósítás, mind a belső terek kialakítása a mai kor igényeinek, elvárásainak megfelelő.

A hirdetési ár 50 % befizetése szerződéskötéskor.

A lakások átadási határideje: szerződéskötést követően 1 év.

Néhány jellemző az ingatlanról
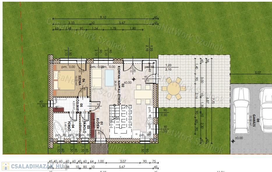
- kétszintes, tégla építésű családi ház 130 m2 alapterülettel, 20 m2 terasszal és 36 m2 garázzsal
- amerikai konyhás nappali, 4 szoba, dupla komfort
- hőszigetelt műanyag nyílászárók
- padlófűtés kondenzációs kazánnal
- belső burkolatok a tulajdonos által katalógusból választva

Részletes műszaki leírás irodánkban elérhető!

Amennyiben a hirdetésben szereplő új építésű társasházi lakás, vagy bármely, a kínálatunkban található ingatlan felkeltette érdeklődését, hívjon bizalommal!

|A hirdetésben szereplő információk a megbízótól kapott adatok alapján készültek.|

Irodánk teljes körű szolgáltatással áll ügyfelei rendelkezésére: hitelügyintézés, ügyvédi szolgáltatás, ingatlan értékbecslés, energetikai tanúsítvány készítése.

CasaNetWork - Ingatlanban otthon vagyunk!

Családi ház részletei

Ár: 88 000 000 Ft
Méret: 150 négyzetméter
Azonosító: 11574446
Irodai azonosító: 155804676
Telek: 627 négyzetméter
Ingatlan állapota:
Jelleg: családi ház
Építőanyag: Tégla
Fűtés jellege: Cirkó
Egész szobák: 5

Így keressen családi házat négy egyszerű lépésben. Csupán 2 perc, kötelezettségek nélkül!

Szűkítse a családi házak
listáját
Válassza ki a megfelelő
családi házat
Írjon a hirdetőnek
Várjon a visszahívásra