Eladó családi ház Szászberek 88 000 000 Ft

Leírás

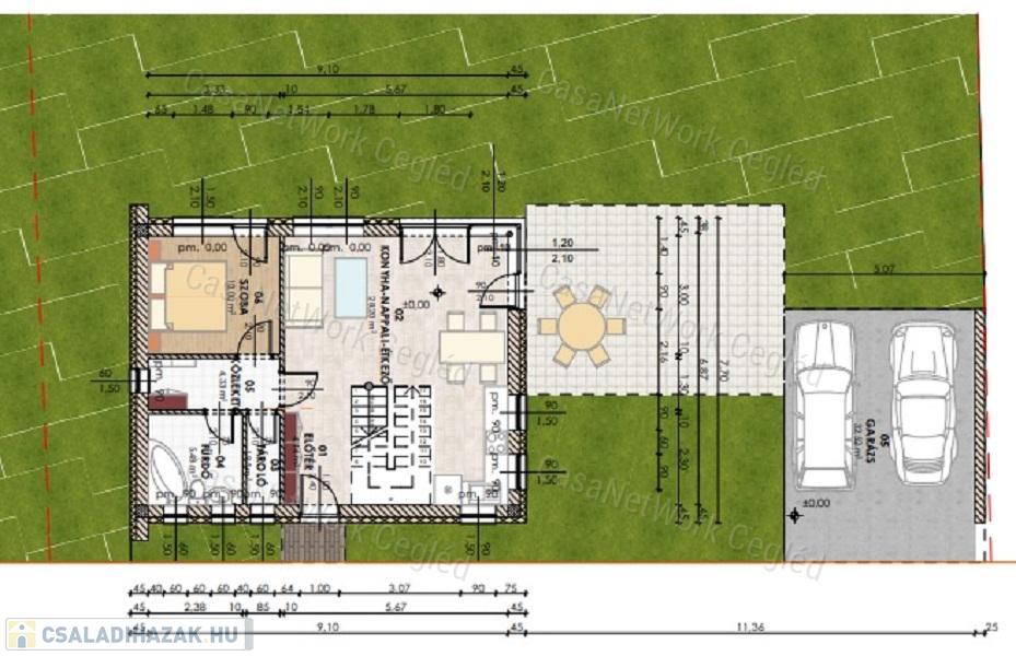
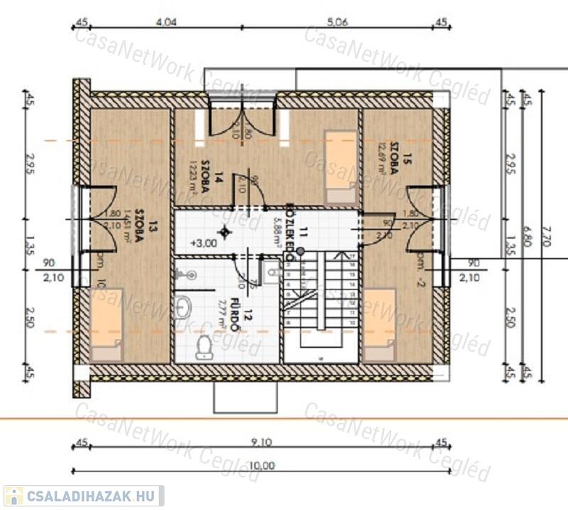
A CASANETWORK CEGLÉD eladásra kínálja a 174601427 számú, új építésű ingatlant SZÁSZBEREK FŐUTCÁJÁN. Modern kivitelezésű CSALÁDI HÁZ. A CSALÁDI HÁZ 130 nm lakóterületű, terasz 20 nm, autóbeálló 36 nm. Elosztását tekintve előtér, nappali, konyha-étkező, 4 szoba, 2 db fürdőszoba + wc, közlekedő, terasz. Phorotherm 30 HS falazat, Austrotherm 15 cm hőszigeteléssel. Fűtése kombi gázkazánnal lesz megoldva, lesz felszerelve szintenként 1-1db hűtő/fűtő klíma. A burkolatokat a leendő tulajdonosok választják ki katalógusból.A lakás modern megoldásokkal, igényes anyagokból épül Szászberek központi részén.A CASANETWORK CEGLÉD által kínált ingatlan jellemzői:- 130 m2 fűtött lakótér- Nappali+4 szoba,- Tégla építésű, 15 cm-es hőszigetelés,  - Belmagasság 2,8 méter,- Összközműves,- Fűtése kondenzációs gázkazánnal lesz megoldva,- Hőszigetelt, műanyag nyílászárók, fehér színben- Parkolni az udvarban saját saját fedett beállón lehetséges 2 autó számára,- 2 db hűtő/fűtő klíma klíma, - plusz információk kizárólag egyeztetett időpontban.A családi ház átadása 2024 évben várható.A hirdetési ár 30%  befizetésével garantált.A CSALÁDI HÁZ Szászberken épül, 1000 fős település Szolnoktól 17 km-re. Közúton a 32-es főútról érhető el, annak keleti oldalán fekszik. A 4-es számú főút kb. 8 perc alatt elérhető. A település közössége kiváló, nemrég sportcsarnok valamint műfüves futballpálya került átadásra. További fejlesztések várhatóak.Amennyiben a 174601427 számú A CASANETWORK CEGLÉD által kínált CSALÁDI HÁZ vagy bármely a kínálatunkban található TÉGLA LAKÁS, CSALÁDI HÁZ felkeltette érdeklődését, hívjon a megadott telefonszámon. /A hirdetésben szereplő információk a megbízótól kapott adatok alapján készültek, pontosságukért felelősséget nem vállalunk!/Kollégám díjmentes, bank semleges hitel ügyintézéssel áll rendelkezésre.CasaNetWork - Ingatlanban otthon vagyunk!

Családi ház részletei

Ár: 88 000 000 Ft
Méret: 150 négyzetméter
Azonosító: 11120556
Irodai azonosító: 174601427
Telek: 627 négyzetméter
Ingatlan állapota: Épülő
Jelleg: családi ház
Építőanyag: Tégla
Fűtés jellege: Cirkó
Komfort fokozat: Összkomfort
Bútorozott: Nem bútorozott
Egész szobák: 5

Így keressen családi házat négy egyszerű lépésben. Csupán 2 perc, kötelezettségek nélkül!

Szűkítse a családi házak
listáját
Válassza ki a megfelelő
családi házat
Írjon a hirdetőnek
Várjon a visszahívásra