Eladó családi ház Szár 90 300 000 Ft

Leírás

ÚJÉPÍTÉSŰ, KÖRNYEZETBARÁT, ALACSONY ENERGIAIGÉNYŰ OTTHONOK A VÉRTES LAKÓPARKBAN

Tatabányától néhány kilométerre, szár új parcellázású, fejlődő övezetében
DOT-ING INGATLAN kínálatában elérhető két önálló kertkapcsolatos, földszintes családi ház, modern építészeti megoldásokkal és kiemelkedő energetikai paraméterekkel.

PROJEKT RÖVIDEN
• Helyszín: Szár, Vértes Lakópark
• Telek: 1 400 m² összterület – 2 db, egyenként kb. 700 m² saját telekhányad
• Épület típusa: egyszintes, 3 hálószoba + amerikai konyhás nappali, terasszal
• Kivitelezés: minőségi, kulcsrakész állapotban
• Várható átadás: 2026. IV. negyedév

MŰSZAKI TARTALOM (rövidített kivonat)
Szerkezet, alapozás
• Vasalt sávalap statikai terv szerinti kivitelben
• LEIER zsalukő lábazat, kibetonozva, függőleges és hosszanti vasalással
• Alaplemezen 15 cm vasalt aljzatbeton, alatta AUSTROTHERM AT-N150 lépésálló hőszigetelés (10–12 cm)
• Talajnedvesség elleni bitumenes lemezszigetelés, vizes helyiségekben kent vízszigetelés (MAPELASTIC)
Falazat és hőszigetelés
• Teherhordó falak: YTONG CLASSIC 30 cm pórusbeton
• Válaszfalak: YTONG Pve10 – 10 cm vastag válaszfaltégla
• Homlokzati hőszigetelés: 15 cm vastag BAUMIT Dryvit ásványi hőszigetelő rendszer
• Lábazati hőszigetelés: 14 cm AUSTROTHERM XPS zártcellás szigetelés
• Belső vakolat: BAUMIT Ratio Slim javított mészhabarcs, simított kivitel
• Külső vakolat: törtfehér, gördülőszemcsés, páraáteresztő vékonyvakolat

Födém és tető
• Szeglemezes fa tetőszerkezet, hőkezelt, rovar- és gombamentesített
• Tetőfödém: hőszigetelt fafödém 30 cm ROCKWOOL ásványgyapottal
• Héjazat: Mediterrán jellegű Terrán/Leier betoncserép
• Bádogozás: acéllemez, antracit színben
• Padlás: lehajtható padlásfeljáróval megközelíthető, szervizelésre alkalmas

Nyílászárók
• Külső: háromrétegű üvegezésű, 5 kamrás műanyag nyílászárók (U ≤ 0,85 W/m²K)
• Belső: típusajtók, laminált fa hatású felülettel
• Bejárati ajtó: többpontos biztonsági záródás, hőhídmentes szerkezet

Gépészet
• Energiatakarékos hőszivattyús fűtési rendszer, víz–víz vagy levegő–víz rendszerben, teljesítményigény szerint
• Padlófűtés minden lakótérben, egyedi termosztátos szabályozással
• Hideg- és melegvíz-hálózat: 5 rétegű ALPEX csövezés, présidomos kötésekkel
• Szennyvízelvezetés: PVC KG rendszer
• Vízlágyító előkészítés (Euroclear kompatibilis)
• Klíma-előkészítés kiépített védőcsövezéssel és kondenzvíz elvezetéssel

Elektromos hálózat
• 3 fázisú betáplálás,
• Sedna vagy Schneider Electric szerelvénycsalád
• Helyiségenként TV/UTP csatlakozás
• LED világítás előkészítés, kapcsolt fénypontokkal
• Riasztó- és kaputelefon rendszer csövezése előkészítve

Burkolatok és festés
• Laminált parketta a hálószobákban
• Greslap burkolat a konyhában, fürdőben, előtérben és nappaliban
• Fürdő: fali csempe 2,1 m magasságig, modern szaniterekkel
• Festés: kétszeri glettelés, kétszeri vizes bázisú diszperzió, fehér színben

ALAPADATOK ÉS ÁRAK:

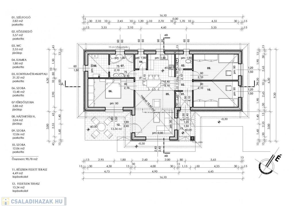
„B” épület: Nettó alapterület :90,78 m² | Terasz 13 m² | Telek ~700 m² | Vételár(bruttó): 90 300 000Ft

Állapot: kulcsrakész
Átadás: 2026. IV. negyedév

LOKÁCIÓ
Szár – Fejér megye egyik legdinamikusabban fejlődő települése, mégis megőrizte vidéki hangulatát.
• Tatabánya: 8 perc
• Bicske: 10 perc
• Budapest: ~30 perc az M1 autópályán
• Közvetlen buszjáratok és vasúti kapcsolat is elérhető

Ideális választás azoknak, akik természetközeli, nyugodt életet keresnek, de nem akarnak lemondani a városi kényelemről és közelségről.

KINEK AJÁNLOTT?
• Családoknak, akik új, energiahatékony otthonban kezdenének
• Befektetőknek, akik hosszú távú értékálló ingatlant keresnek
• Fiatal pároknak, akik modern, alacsony fenntartású házban gondolkodnak
• Természetkedvelőknek, akik vidéki környezetben, de jó elérhetőséggel szeretnének élni

FINANSZÍROZÁS
Vásárolna, de hitelre van szüksége?
Kollégáink díjmentes, banksemleges hitelügyintézéssel állnak rendelkezésére –
akár CSOK Plusz, Babaváró vagy zöldhitel konstrukciókkal.

ÉRDEKLŐDÉS
Farkas Gergely | farkas.gergely@dot-ing.hu | +36 30 322 101

DOT-ING INGATLAN – szakértelem, megbízhatóság, minőség.

Jogi nyilatkozat: A hirdetés tájékoztató jellegű, nem minősül ajánlattételnek.
A pontos műszaki tartalom a vállalkozói szerződés mellékletében kerül rögzítésre.
A látványtervek illusztrációk.
A KÖRNYÉK:
SZÁR egy folyamatosan fejlődő falu Fejér megyében, amely még mindig megőrzi a vidéki élet varázsát. A település mindössze TÍZ KILOMÉTERRE található Bicskétől. Szár csendes utcáiban a nyugalom és a vidéki hangulat uralkodik, és mindez csak FÉL ÓRÁNYI AUTÓÚTRA VAN BUDAPESTTŐL az M1-es autópályán. Ez az ideális hely a természet szerelmeseinek és azoknak, akik szeretnének elmenekülni a város zajától, miközben még mindig könnyen elérhetők a városi kényelmek és szolgáltatások.

KINEK AJÁNLOM:
Mindazoknak, akik szeretnék megtalálni az ideális lakhelyet, ahol nyugodt környezetben élhetnek.
Azoknak, akik értékelik a tágas és napfényes tereket, valamint fontos számukra a kényelmes terasz és kert jelenléte.
Azoknak, akik szeretnék elkerülni a felújítással járó nehézségeket, és inkább az újépítésű családi ház kényelmét és előnyeit részesítenék előnyben.

Ebben az otthonban megtalálhatják álmaik lakhelyét!
Amennyiben a DOT-ING INGATLAN által kínált CSALÁDI HÁZ projekt, vagy bármely a kínálatunkban található LAKÁS felkeltette érdeklődését, hívjon bármikor a megadott telefonszámon.

Vásárolna, de nincs rá keret? Kollégám díjmentes, bank semleges hitelügyintézéssel áll rendelkezésére.




Farkas Gergely
farkas.gergely@dot-ing.hu
+36 30 322 1015

Családi ház részletei

Ár: 90 300 000 Ft
Méret: 91 négyzetméter
Azonosító: 11574105
Irodai azonosító: 9519
Cím: Szár
Telek: 700 négyzetméter
Ingatlan állapota:
Jelleg: családi ház
Építőanyag: Kérdezzen rá a hirdetőtől »
Fűtés jellege: Egyéb
Kor: Új építésű
Egész szobák: 4

Így keressen családi házat négy egyszerű lépésben. Csupán 2 perc, kötelezettségek nélkül!

Szűkítse a családi házak
listáját
Válassza ki a megfelelő
családi házat
Írjon a hirdetőnek
Várjon a visszahívásra