Eladó családi ház Szada 97 900 000 Ft

Leírás

SZADA CSENDES ZSÁK UTCÁJÁBAN, EGYEDI KIALAKÍTÁSÚ, FELÚJÍTOTT ÁLLAPOTÚ, 2 GENERÁCIÓS CSALÁDI HÁZ ELADÓ!!!

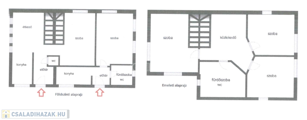
Szada csendes zsák utcájában, kertvárosi környezetben, 288 nm-es telken lévő, 1998-ban épült, de 2007-ben és 2022-ben teljeskörűen felújított és kibővített, vasbeton födémes, két szintes, szigetelt (10cm dryvit), felújított állapotú, bruttó 170 nm-es, 5 szobás, Dél - Nyugati fekvésű, 2 GENERÁCIÓS (külön bejárattal, de vissza is alakítható 1 generációsra), gáz cirkó fűtéses (radiátoros hőleadással), klímával felszerelt, műanyag thermo nyílászárós, rugalmasan birtokba vehető, családi ház eladó.

A nagyobbik lakrészen (110 nm) amerikai konyhás, étkezős nappali, 3 hálószoba, fürdőszoba, wc lett kialakítva két szinten.

A kisebbik lakrész 35 nm-es, földszintes 1 szobával, fürdőszobával, konyhával nyerte el jelenlegi állapotát.

A zárt udvaron 2 autóval meg lehet állni, a kertben egy nagy terasz (25 nm), boros pince (8nm), tároló, bográcsozó kapott helyet.

A környék ellátottsága, infrastruktúrája jó, sétatávolságra iskola, óvoda, gyermekorvosi rendelő, játszótér található, közvetlen buszjárattal elérhető Budapesten a Stadionok Metró megálló, továbbá személygépkocsival az M0-ás, M3-mas autópálya, Tesco, Stop Shop perceken belül megközelítehető!

Érdemes megnézni, bővebb információért hívjon bizalommal akár hétvégén is!
L.D

INGYENES hitel tanácsadás, CSOK PLUSSZ, OTTHON START ügyintézés!
BANKFÜGGETLEN hitelcentrumunk az összes elérhető bank és hitelintézet ajánlatát versenyezteti az Ön kedvéért, ráadásul DÍJMENTESEN.

- Egyedi, bankfiókban nem elérhető kamat- és díjkedvezmények
- Hitelképesség vizsgálat
- Idő, energia és pénz megtakarítás
- Teljes hivatali ügyintézés

Családi ház részletei

Ár: 97 900 000 Ft
Méret: 145 négyzetméter
Azonosító: 11547359
Irodai azonosító: 384386
Cím: Szada zsákutcájában
Telek: 288 négyzetméter
Ingatlan állapota: Felújított
Jelleg: családi ház
Építőanyag: Tégla
Fűtés jellege: Cirkó
Fűtés módja: Gáz
Komfort fokozat: Dupla komfort
Kor: 21-50 éves
Szintek száma: 1 szint
Egész szobák: 5

Egyéb jellemzők

  • Csatorna
  • Garázs
  • Pince
  • Terasz

Térkép


Így keressen családi házat négy egyszerű lépésben. Csupán 2 perc, kötelezettségek nélkül!

Szűkítse a családi házak
listáját
Válassza ki a megfelelő
családi házat
Írjon a hirdetőnek
Várjon a visszahívásra