Eladó családi ház Szada 124 500 000 Ft

Leírás

Kivételes Ajánlat!

A megfelelő otthon, a nyugalom záloga Fodor Ingatlanközvetítő kft kínálatában!!!

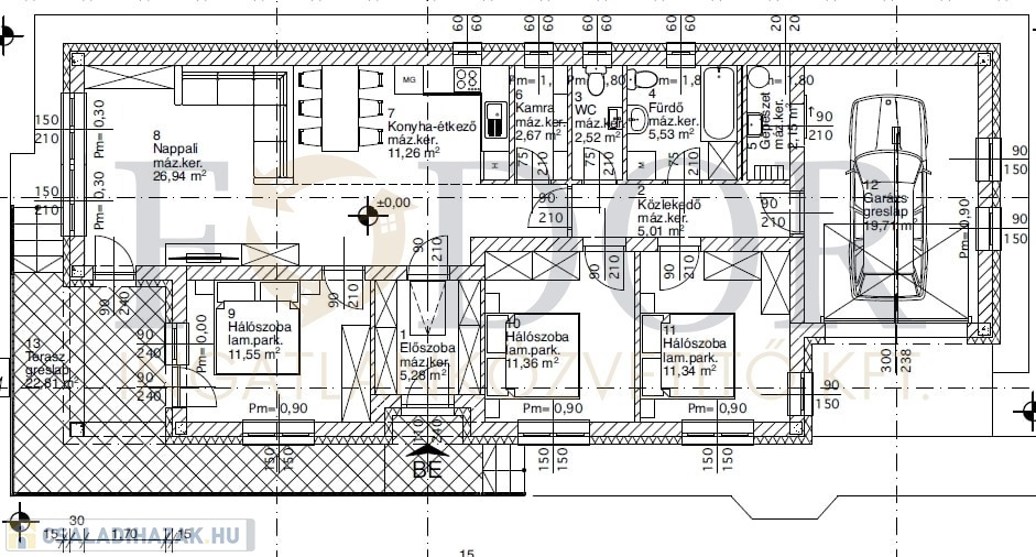
Szada, Várdomb részén csendes mellékutcában kínálok eladásra egy Újépítésű magas műszaki tartalommal épülő 1 db bruttó 116 nm-es nappali + 3 szobás, földszintes, garázzsal épülő családi házat. A 2025-es évi elvárásoknak megfelelően megújuló energiaként Hőszivattyúval, amely H-tarifás villanyórára lesz csatlakoztatva. Szobákban, konyhában, nappaliban, többi helyiségben padlófűtés, fürdőszobában törölköző szárítós radiátor. A ház teljesen körbe napozott, (DNY) tájolásának köszönhetően. Kellemes terei, elegáns megjelenése teszi egyedivé ezt a családi otthont.

A 950 nm-es telekre 1 db földszintes családi ház kerül megépítésre. Jelen állapotában az építkezés, folyamatosan halad. Foglalja le, és kövesse nyomon leendő háza épülését alakítsa belső elrendezését saját igényei szerint.

• Falazat: Phorotherm 30-as tégla
• Szigetelés: homlokzaton 15 cm-es Grafitos hőszigetelő rendszer
• H-tarifás villanyóra
• Vasbeton födém
• Nyílászárók: fehér műanyag 6 kamrás 3 rétegű üvegezéssel
• Áramellátás 3x20 Amper
• Hőszivattyú padlófűtéssel
• antracit beton cserép

Tulajdonságok:
• amerikai konyhás világos nappali
• 3 db hálószoba
• 1 dbfürdő / 2wc
• Saját privát telekterület !!!
• Riasztó rendszer vezetékelve
• elektromos kapu előkészítés

Ha Szadán egy kincset keres megtalálta!!!

Várható Átadás: 2025.III. negyedév

KÖRNYÉK:

Szada, Budapesttől 30 km-re található, a már beépült Várdomb lakóövezet közelében. A lakónegyed kiváló közlekedési adottságokkal bír, mind a tömegközlekedést (buszmegálló 2 percre) mind a gépjárművet használók könnyen elérhetik a környező településeket vagy a fővárost is. Bevásárlóközpont a közvetlen közelben, csak úgy, mint a virágbolt, a kozmetika, a zöldséges, pék, gyalogosan is könnyen megközelíthetők.

Babaváró támogatás, Csok Plusz, kamattámogatott hitel igénybe vehető.

A hirdetésben szereplő vételár a kulcsrakész állapotra vonatkozik. Burkolatok, szaniterek, beltéri ajtók választhatóak.

IRODÁNK INGYENES HITEL ÜGYINTÉZÉSSEL, TANÁCSADÁSSAL, SZÁMOS BANK AJÁNLATÁVAL ÉS AZ ÚJ CSOK FOLYÓSÍTÁSÁVAL VÁRJA ÜGYFELEIT.

Családi ház részletei

Ár: 124 500 000 Ft
Méret: 116 négyzetméter
Azonosító: 11563005
Irodai azonosító: 335716
Telek: 950 négyzetméter
Ingatlan állapota: Kitűnő
Jelleg: családi ház
Építőanyag: Tégla
Komfort fokozat: Összkomfort
Kor: Új építésű
Egész szobák: 4

Egyéb jellemzők

  • Garázs
  • Terasz

Így keressen családi házat négy egyszerű lépésben. Csupán 2 perc, kötelezettségek nélkül!

Szűkítse a családi házak
listáját
Válassza ki a megfelelő
családi házat
Írjon a hirdetőnek
Várjon a visszahívásra