Eladó családi ház Sümeg 22 900 000 Ft

Leírás

Legyen Öné ez a felújításra váró nagyon jó elosztással rendelkező családi ház Sümeg belvárosában.
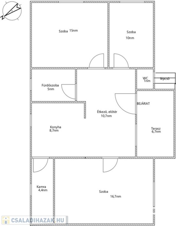
Az ingatlanba egy nagy méretű teraszról jutunk be a világos étkező és előtér együttesébe, ahonnan szemben a konyha és mellette a fürdőszoba, balra a konyhától a tágas nappali, - mely egybenyitható az étkezővel és a konyhával, - jobbra az előtérből pedig a két hálószoba nyílik. A ház elosztásából adódóan funkcionálisan jól elválasztható területekre osztható a ház. A tetőtér beépíthető, a betongerendás kefnis födém ezt lehetővé teszi. A padlásfeljáró jelenleg a kamrából nyílik, mely a konyhából megközelíthető, azonban a kamra másik oldalán a nappali található, melynek falát egybe lehet nyitni a tetőtérbe vezető feljárási lehetőséggel. Így az épület még tágasabb otthonná alakítható. Legyen Ön az, aki megálmodja és kialakítja otthonát ebben a sok lehetőséget rejtő ingatlanban.
A város központi és utcafronti elhelyezkedése lehetővé teszi akár kereskedelmi, vagy egyéb tevékenység folytatására is az ingatlant.
Jelenlegi állapota felújítandó. Az épületben villany, víz, csatorna és gáz bevezetése megtörtént. Jelenlegi tulajdonosai a gázórát leszereltették, mivel nem használták az épületet. A fürdőszoba szaniterei a zuhanyzó kivételével megvannak, helyre állíthatók, a zuhanykabin cseréje szükséges. A szobák laminált padlósak jelenleg, de felszedésük szükséges. A nyílászárók anyaga fa és műanyag, de mindegyik hő és hangszigetelt. Az ablakokon zsalugáterek biztosítják az ablakok külső védelmét és árnyékolást. A terasz fedett, a külső korlátok fémből készültek. Az épület beton alapon nyugszik, falazata B30-as tégla, a födém betongerendás kefnis, a tetőtérben szigetelő betonnal. Nyeregtetős fa tetőszerkezet, rajta pala fedéssel. Az épületben három jelenleg is működő kémény lehetőséget nyújt arra, is, hogy bárhol hangulatos kandallót helyezzünk el.
Az udvar teljesen zárt, az épület mögött épült házban lakóknak a bejáróra szolgalmi jog került bejegyzésre. Az épület mögött lévő zárt terület alkalmas akár garázs, vagy grillezőhely kialakítására is.
Várom hívását, jöjjön el, nézze meg, legyen az Öné!
(További képekért és információkért kérem hívjon!)

Családi ház részletei

Ár: 22 900 000 Ft
Méret: 80 négyzetméter
Azonosító: 11563847
Irodai azonosító: 426942
Telek: 243 négyzetméter
Ingatlan állapota: Felújítandó
Jelleg: családi ház
Építőanyag: Tégla
Egész szobák: 3
Nappalik: 1

Egyéb jellemzők

  • Beépíthető tetőtér
  • Csatorna
  • Garázs
  • Melléképület
  • Pince
  • Terasz

Így keressen családi házat négy egyszerű lépésben. Csupán 2 perc, kötelezettségek nélkül!

Szűkítse a családi házak
listáját
Válassza ki a megfelelő
családi házat
Írjon a hirdetőnek
Várjon a visszahívásra