Eladó családi ház Sülysáp 69 990 000 Ft

Leírás

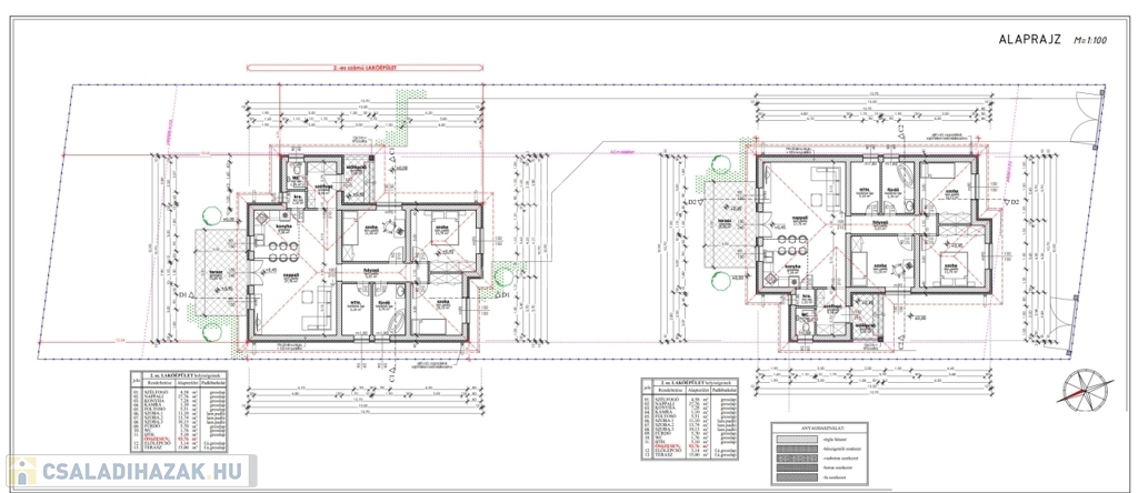
Sülysápon a Határ úton 954 m2-es telken, 5. azonos tervek alapján épülő hamarosan induló projektben, 93,76 m2-es három szoba + amerikai konyhás nappalival rendelkező, energiahatékony családi házak eladók!

A hátsó ingatlan elkelt!

A Határ út Sülysáp Kóka felőli utolsó utcája, mégis közel van a központhoz. A telekről csodálataos panoráma nyílik a mögötte elhelyezkedő szántóra és az erdőre.

Az első ingatlan 440 m2-es kizárólagos használatú telekrésszel kerül kialakításra.
A hátsó ingatlan egy 3 méter széles a telek bal oldalán kialakított 74m2-es úton lesz megközelíthető, melyen felül 440 m2 telekrésszel fog rendelkezni., vételára 75.000.000.- Ft.

A tartószerkezeti falak Porotherm P30N+F téglából, betonkoszorúval, fa födémes tetőszerkezettel készülnek. A lábazat 10 cm polisztirol lépésálló, a homlokzatok 15cm-es EPS, a vízszintes födém 25 cm ásványgyapot szigeteléssel lesz ellátva.

Három rétegű üvegekkel szerelt, hat légkamrás műanyag thermo nyílászárók kerülnek beépítésre.

A minimális energiaigényt a megfelelő szigetelésen kívül a megújuló energiát használó gépészet is biztosítja. A fűtést levegő-víz hőszivattyús rendszer fogja végezni.


Burkolatok , szaniterek, belső ajtók, csaptelepek választhatóak a következő értékhatárig:

-Hidegburkolat: 3000 Ft.-/m2
-Melegburkolat: 3000 Ft.-/m2
-Beltéri ajtók: 30.000.Ft.-/db
-Fürdőkád: 40.000.- Ft.-
-Csaptelepek: 15000.- Ft.-/db

Magasabb árú választás is lehetséges, a különbség finanszírozásával.

A kivitelező korábban azonos tervek alapján épített, már birtokba adott ingatlanjait komoly érdeklődés esetén szívesen megmutatjuk referenciaként.

Központi elhelyezkedésének köszönhetően a közelben megtalálhatóak:
-óvoda 400m
-Móra Ferenc általános iskola 700m
-Tesco 800m
-Vasútállomás 550m
-Polgármesteri hivatal 750m
-Sülysáp 1-es Posta 750m
-Sülysáp Városi Piac 1km

Csok plusz igényelhető!

Tervezett átadás 2026 harmadik negyedév.

Érdeklődő ügyfeleinknek a tervdokumetációt és a műszaki tartalmat készséggel rendelkezésre bocsájtjuk.

INGYENES hitel tanácsadás, CSOK Plusz ügyintézés!
BANKFÜGGETLEN hitelcentrumunk az összes elérhető bank és hitelintézet ajánlatát versenyezteti az Ön kedvéért, ráadásul DÍJMENTESEN.

- Egyedi, bankfiókban nem elérhető kamat- és díjkedvezmények
- Hitelképesség vizsgálat
- Idő, energia és pénz megtakarítás
- Teljes hivatali ügyintézés

Amennyiben hirdetésem felkeltette az érdeklődését vagy egyéb információra van szüksége hívjon bizalommal!

Családi ház részletei

Ár: 69 990 000 Ft
Méret: 94 négyzetméter
Azonosító: 11560776
Irodai azonosító: 386643
Cím: Határ út
Telek: 440 négyzetméter
Ingatlan állapota: Kitűnő
Jelleg: családi ház
Építőanyag: Tégla
Fűtés jellege: Geotermikus
Fűtés módja: Hőszivattyú
Komfort fokozat: Összkomfort
Kor: Új építésű
Szintek száma: Földszintes
Egész szobák: 4

Egyéb jellemzők

  • Csatorna
  • Garázs
  • Pince
  • Terasz

Térkép


Így keressen családi házat négy egyszerű lépésben. Csupán 2 perc, kötelezettségek nélkül!

Szűkítse a családi házak
listáját
Válassza ki a megfelelő
családi házat
Írjon a hirdetőnek
Várjon a visszahívásra