Eladó családi ház Sülysáp 110 000 000 Ft

Leírás

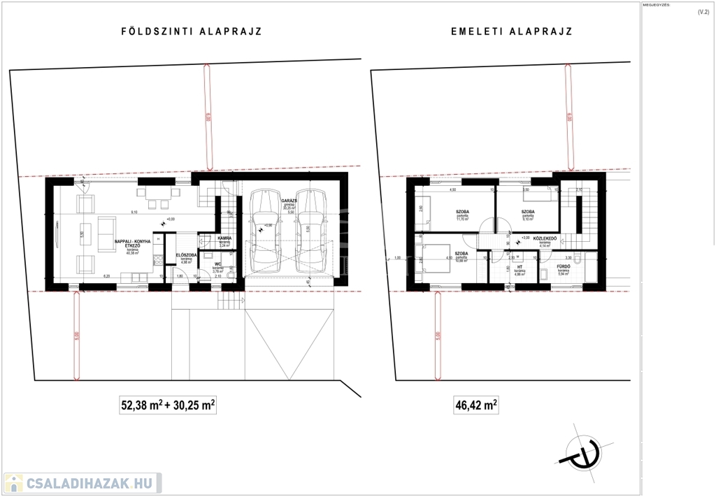
Sülysápon a Viola utcában a Melegvölgyi lakóparkban , 380 m2-es telken, újonnan épülő nettó 98,8 m2 hasznos lakótérrel és 30,25 m2-es garázzsal rendelkező, 3 szoba + nappalis csodálatos panorámával rendelkező önálló családi ház eladó.

Az ingatlan 30-as Nútféderes tégla falazóelemből épült, mindkét szinten E gerendás vasbeton födémmel.
A tető héjazata barna terrán betoncserép , a homlokzatok 15cm EPS, a padló 10cm lépésálló, a vízszintes födém 25cm táblás közetgyapot szigeteléssel lett ellátva.

Hét légkamrás argon gázzal töltött 3 rétegű üvegekkel szerelt melegperemes Salamander nyílászárók kerütek beépítésre, 76mm-es tokszerkezettel. A beépített rejtett tokos szigetelt alúmínium redőnyök elektromosak.

A fűtést és a hűtést 6kw-os split rendszerű daikin hőszivattyús rendszer látja el, padlófűtéssel és menyezet hűtés-fűtéssel. A használati melegvizet is a hőszivattyú szolgáltatja indirekt tartállyal.

A két autó befogadására alkalmas garázst elektromos hörmann ajtóval látták el.

A biztonságról nyitás és mozgásérzékelőkkel szerelt riasztórendszer gondoskodik.

Minőségi beltéri ajtók, szaniterek, geberit falsík mögötti wc tartályok, ledes világítás, igényes kivitelezés jellemzik az ingatlant.

A külső homlokzati szín, WC csészék és mosdók még választhatóak.

INGYENES hitel tanácsadás, CSOK Plusz ügyintézés!
BANKFÜGGETLEN hitelcentrumunk az összes elérhető bank és hitelintézet ajánlatát versenyezteti az Ön kedvéért, ráadásul DÍJMENTESEN.

- Egyedi, bankfiókban nem elérhető kamat- és díjkedvezmények
- Hitelképesség vizsgálat
- Idő, energia és pénz megtakarítás
- Teljes hivatali ügyintézés

Amennyiben hirdetésem felkeltette az érdeklődését vagy egyéb információra van szüksége hívjon bizalommal!

Családi ház részletei

Ár: 110 000 000 Ft
Méret: 129 négyzetméter
Azonosító: 11609731
Irodai azonosító: 383527
Cím: Viola utca
Telek: 380 négyzetméter
Ingatlan állapota: Kitűnő
Jelleg: családi ház
Építőanyag: Tégla
Fűtés jellege: Geotermikus
Fűtés módja: Hőszivattyú
Komfort fokozat: Összkomfort
Kor: Új építésű
Szintek száma: 1 szint
Egész szobák: 4

Egyéb jellemzők

  • Csatorna
  • Garázs
  • Pince
  • Terasz

Térkép


Így keressen családi házat négy egyszerű lépésben. Csupán 2 perc, kötelezettségek nélkül!

Szűkítse a családi házak
listáját
Válassza ki a megfelelő
családi házat
Írjon a hirdetőnek
Várjon a visszahívásra