Eladó családi ház Solymár 155 000 000 Ft

Leírás

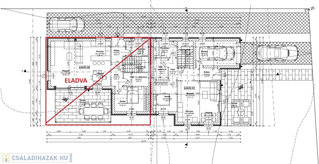
SOLYMÁRON kínálunk eladásra egy DUPLA KOMFORTOS, NAPPALI +3 HÁLÓS, DE 5 SZOBÁSSÁ IS ALAKÍTHATÓ, ÚJ ÉPÍTÉSŰ ikerházat.

Az épület zöldövezeti, csendes utcában, de mégis a főútvonalhoz, buszmegállóhoz, élelmiszer boltokhoz közel található.
Az ikerház felek, egymástól teljesen szeparálva (dupla falazással, dilatációs-hanggátló szigeteléssel, külön alapozással, eltérő homlokzaton elhelyezkedő bejárással) kerülnek kialakításra.
A kivitelezés elkezdődött, de az ikerház hátulsó lakása már eladásra került!

TELJESEN PRIVÁT ÉS INTIM SZFÉRA, A LEENDŐ SZOMSZÉDDAL CSAK A KAPUBAN MEGÉRKEZÉSKOR TALÁLKOZHATUNK!

NEM LÁTUNK EGYMÁS TELKÉRE, HÁZÁRA, NAGYON ÁTGONDOLT ÉS PRAKTIKUS TERVEZÉS!

Az épület várható átadási ideje: 2026. tavasz.
A fizetés készültség-arányosan, ütemezetten történik.
CSOK és 5% ÁFA igényelhető!

Műszaki tartalom:
- Porotherm 30N+F falazat 15cm EPS hőszigeteléssel
- 13cm lépésálló EPS hőszigetelés a padlóban
- 30cm gyapot hőszigetelés a padlásfödémen
- 3-rétegű fa nyílászárók
- Vaillant gyártmányú hőszivattyús fűtési-hűtési rendszer H-tarifás villanyórával
- Wavin gyártmányú fűtés szabályozó automatika
- földszinti padlófűtés és mennyezeti hűtés-fűtés
- riasztó és kamera rendszerek előkészítésével.

A tervezésnek köszönhetően a garázs könnyen alakítható szobának vagy egyéb helyiségnek!

Burkolatok még választhatók és egyéb kérések bizonyos megkötöttségekkel még kivitelezhetőek!

Rugalmasan megtekinthető, közel szerkezetkész állapotban van már!

Családi ház részletei

Ár: 155 000 000 Ft
Méret: 127 négyzetméter
Azonosító: 11547014
Irodai azonosító: 384298
Cím: Vám utca
Telek: 380 négyzetméter
Ingatlan állapota: Kitűnő
Jelleg: ikerház
Építőanyag: Tégla
Fűtés jellege: Geotermikus
Fűtés módja: Hőszivattyú
Komfort fokozat: Dupla komfort
Kor: Új építésű
Szintek száma: 1 szint
Egész szobák: 4

Egyéb jellemzők

  • Csatorna
  • Garázs
  • Pince
  • Terasz

Térkép


Így keressen családi házat négy egyszerű lépésben. Csupán 2 perc, kötelezettségek nélkül!

Szűkítse a családi házak
listáját
Válassza ki a megfelelő
családi házat
Írjon a hirdetőnek
Várjon a visszahívásra