Eladó családi ház Solt 65 000 000 Ft

Leírás

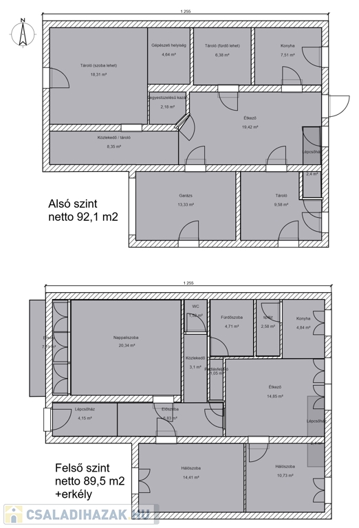
Családi ház +kert. Belső kialakítása nagyon jó és jó minőségű. Nem egy kádárkocka… 2 háló, nagy nappali, ebédlő-konyha, kamra, fürdő, külön wc. Alsó szinten konyha ebédlő, tárolók találhatók. Itt kialakítható akár egy önálló lakás is. A fürdő nemrég teljesen fel lett újítva. A ház korszerűsítésre kiváló, alacsony költségvetéssel megoldható, mert erős, jó minőségű a szerkezete, nem fog kellemetlen meglepetést okozni... Gázközponti fűtés van, vegyes tüzelésű kazánnal kombinálva. A kertből 2 utcára van kijárat, és van fúrt kút is. ház alapterülete 2 x 90 m2, Biztonságos csendes környéken kisváros központjában. Orvos, patika, iskola, bolt 5 percre, Autópálya 10 perc. Budapest 1 óra. Nagyon erős jó ház, három vasbeton koszorúval, 1974-ben kőműves mester építette a családjának. Az ingatlan tehermentes, tulajdoni lap-térkép rendben. Azonnal hitelezhető. csak 361.000Ft/m2. Ennyiért, -telekkel együtt- lehetetlen újat építeni.... magánszemélytől eladó.
Nemrég fel lett újítva a városközpont és az iskola. Új sportcsarnok van, és új művelődési központ épül. Tűzoltóság és mentőállomás is van a városban. telek területe 716 m2. Érdeklődni a 06-30/95-94-515 telefonszámon lehet. Ingatlanközvetítő csak akkor keressen, ha egyből hozza a vevőt is.

Hobbi lehetőségek a közelben:
Több remek horgásztó gyalog vagy kerékpárral néhány percen belül elérhető. ( Akasztói Horgászpark, Kopolya, Fűzvölgyi csatorna, Dunavölgyi Főcsatorna) A nagy dunai, Duna holtági illetve több egyéb vadvízi és intenzíven telepített horgászparadicsom gépjárművel 5-10 perc alatt érhetők el.
A szőlészkedés-borászkodás több száz éves múltra tekint vissza a városban. Tanú erre a nagy kiterjedésű pincefalu, közel ezer borospincével. Rangos esemény a minden évben megtartott borverseny. A pincefalu a háztól gyalog 10 percre található.

Nagy kert tartozik a házhoz, kinek-kinek kedve szerint élelmiszertermelésre vagy diszkertnek is megfelelő, ennek öntözésére található a telken egy bővizű fúrt kút.
A településen fut keresztül a EUROVELO6 Europát átszelő kerékpárút, de más remek minőségű kerékpárutak is indulnak Soltról

Remek strandolási és kempingezési lehetőségek nyílnak egyebek mellett a Duna parton és a Szelidi tó partján, ezeket szintén néhány perc alatt el lehet érni.
Termálfürdők és gyógyfürdők találhatók a közelben, a dunaföldvári fürdő 10 percnyire van autóval, kissé távolabb Dunaújvárosban, Kalocsán, Kiskunhalason, és Kiskunmajsán van lehetőség lubickolni.
Révbéri Lovascentrum a háztól 10 percnyire van kerékpárral.


Családi ház részletei

Ár: 65 000 000 Ft
Méret: 90 négyzetméter
Azonosító: 11581834
Cím: Teleki Sándor u 6
Erkély mérete: 10.00 négyzetméter
Telek: 716 négyzetméter
Ingatlan állapota: Kitűnő
Jelleg: családi ház
Építőanyag: Tégla
Fűtés jellege: Központi
Fűtés módja: Gáz
Komfort fokozat: Összkomfort
Kor: 21-50 éves
Elhelyezkedés: Udvari
Szintek száma: 2 szint
Bútorozott: Bútorozott
Egész szobák: 4
Nappalik: 1

Egyéb jellemzők

  • Csatorna
  • Garázs
  • Melléképület
  • Padlás
  • Parketta
  • Pince
  • Terasz

Térkép


Így keressen családi házat négy egyszerű lépésben. Csupán 2 perc, kötelezettségek nélkül!

Szűkítse a családi házak
listáját
Válassza ki a megfelelő
családi házat
Írjon a hirdetőnek
Várjon a visszahívásra