Eladó családi ház Siófok 76 500 000 Ft

Leírás

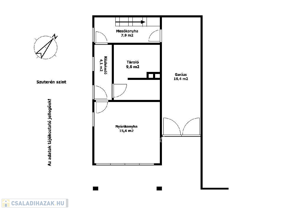
Balaton déli part Siófok 160 m2 családi ház eladó. Az ingatlan Kiliti városrészben családi házas övezetben helyezkedik el. A két szintes lakóépület alsó szintjén garázs, nyári konyha, mosókonyha és tároló kapott helyet, alkalmas lehet külön lakrészként való hasznosításra. A két szint belső lépcsővel összekötött. A 108 m2-es lakószinten a lakóelőtérből 3 szoba és egy félszoba nyílik. A kedvező tájolású nappalihoz teraszkapcsolat biztosított. A tetőtér jelenleg padlásként funkcionál, belső lépcsőről megközelíthető, de külső lépcső építése és tetőtér beépítése esetén nettó 90 m2-es önálló lakásként használható lehet. A lakóépület tetőfedése néhány éve felújításra került. A ház fűtés kombi gázkazánnal, radiátoros hőleadókkal kiépített a lakószinten, a szuterénben gázkonvektor fűt. Az összközműves, bekerített telek terület 800 m2, melyen további gazdasági épület: tároló, műhely található. A lakóépület vásárláshoz OTP hitel, CSOK+ hitel igénybe vehető, ügyintézésben ingyenes szakértői segítséget nyújtunk. Balaton-part 3200 méter, autópálya csatlakozás 1200 méter távolságban van. Otthon Start Hitelprogram Bővebb információért keressen telefonon!

Referencia szám: M304289

Családi ház részletei

Ár: 76 500 000 Ft
Méret: 106 négyzetméter
Azonosító: 11537999
Irodai azonosító: M304289-4949876
Telek: 800 négyzetméter
Ingatlan állapota: Átlagos
Jelleg: családi ház
Építőanyag: Tégla
Fűtés jellege: Cirkó
Fűtés módja: Gáz
Komfort fokozat: Összkomfort
Kor: 21-50 éves
Szintek száma: 1 szint
Egész szobák: 3
Fél szobák: 1

Egyéb jellemzők

  • Garázs

Térkép


Így keressen családi házat négy egyszerű lépésben. Csupán 2 perc, kötelezettségek nélkül!

Szűkítse a családi házak
listáját
Válassza ki a megfelelő
családi házat
Írjon a hirdetőnek
Várjon a visszahívásra