Eladó családi ház Siófok 270 000 000 Ft

Leírás

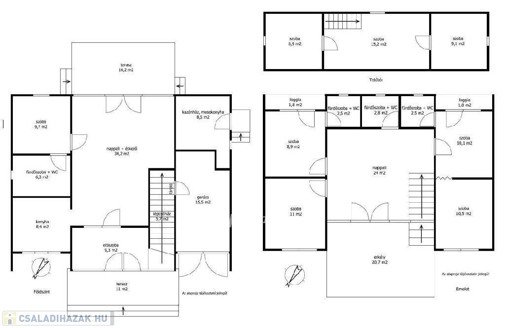
Somogy megyében, Siófok Balatonszéplakon, az Ezüstparton, 222 m2-es ház, 724 m2 telken eladó. Az ingatlan Balatonszéplak kedvelt részén helyezkedik el, csendes, nyugodt környezetben. 5 perc sétával elérhető a 350 m-re található Ezüstpart szabadstrand, szintén pár perc távolságra bevásárlási lehetőségek, éttermek, fagyizók. A 3 szintes, 10 szobás ház fűtését cirkó gázkazán biztosítja radiátor hőleadókkal. A 188 m2-es lakóteret egy 16 m2-es garázs, valamint teraszok, erkélyek egészítik ki, további 53 m2-rel növelve a hasznos alapterületet. A földszinti önálló lakóegységtől teljesen elkülönül az előszobából megközelíthető felső szint, ahol nappali, 4 szoba és 3 fürdőszoba, valamint egy hatalmas erkély és két loggia található. Erről a szintről érhető el további 3 szoba a tetőtérben. Ez a kialakítás számos lehetőséget rejt magában, lehetővé teszi a két szint különálló használatát is, így kiváló lehetőség akár több generációs családoknak állandó lakhatásra vagy nyaralásra, valamint befektetési céllal részben vagy egészben kiadásra is. Parkolni a garázson kívül zárt kocsibeállón, illetve az utcában ingyenesen lehetséges. Bővebb információért keressen telefonon!

Referencia szám: M300156

Családi ház részletei

Ár: 270 000 000 Ft
Méret: 221 négyzetméter
Azonosító: 11538663
Irodai azonosító: M300156-4952791
Telek: 724 négyzetméter
Ingatlan állapota: Átlagos
Jelleg: családi ház
Építőanyag: Tégla
Fűtés jellege: Cirkó
Fűtés módja: Gáz
Komfort fokozat: Összkomfort
Kor: 21-50 éves
Szintek száma: 2 szint
Egész szobák: 10

Egyéb jellemzők

  • Garázs

Térkép


Így keressen családi házat négy egyszerű lépésben. Csupán 2 perc, kötelezettségek nélkül!

Szűkítse a családi házak
listáját
Válassza ki a megfelelő
családi házat
Írjon a hirdetőnek
Várjon a visszahívásra