Eladó családi ház Siófok 219 900 000 Ft

Leírás

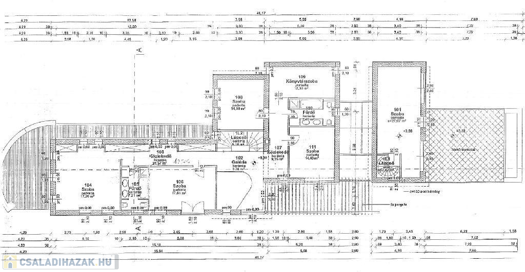
Balaton déli parton, Siófokon 270 m2-es családi ház eladó. Az ingatlan kertvárosi részen, csendes utcában helyezkedik el. A kétszintes épület 2 lakóegységet tartalmaz. A 2006-ban téglából épült lakóház a kor igényeinek megfelelő magas színvonalon, kőzetgyapot homlokzati hőszigeteléssel, természetes pala tetőhéjazattal, egyedi belsőépítészeti megoldásokkal került kivitelezésre. A földszinten külön bejáratú garzonlakás épült, ez akár iroda vagy otthoni vállalkozás céljára is alkalmas lehet. A nagyobb lakrész - földszint + teljes értékű emelet - több generáció együttélésére is alkalmas lehet. A földszinten lakóterek, és hálószoba, emeleten 4 háló és 2 fürdőszoba került kialakításra. Tervek szerint a lakótérből egy télikerten át wellness tér kerül kialakításra, medencetér, szauna, tetőtéri pihenőszoba, tetőterasz, ezek jelenleg szerkezetkész állapotban vannak. Az épület fűtése és melegvíz ellátása gáz kondenzációs kazánnal kivitelezett. A hőleadás módja padlófűtés és falfűtés, használati melegvíz tároló 300 literes. A gépészeti rendszernél medence vízgépészet csövezése elkészült. Épületen belül kétállásos, fűtött garázs áll rendelkezésre. A telek területe 991 m2, a parkosított kertben automata öntözőrendszer fúrt kútról működik. Balaton-part és városközpont gyalog 800 méter távolságban van. Bővebb információért keressen telefonon!

Referencia szám: M307406

Családi ház részletei

Ár: 219 900 000 Ft
Méret: 270 négyzetméter
Azonosító: 11551692
Irodai azonosító: M307406-4991652
Telek: 991 négyzetméter
Ingatlan állapota:
Jelleg: családi ház
Építőanyag: Tégla
Fűtés jellege: Cirkó
Fűtés módja: Gáz
Komfort fokozat: Összkomfort
Kor: 11-20 éves
Szintek száma: 1 szint
Egész szobák: 7

Egyéb jellemzők

  • Garázs

Térkép


Így keressen családi házat négy egyszerű lépésben. Csupán 2 perc, kötelezettségek nélkül!

Szűkítse a családi házak
listáját
Válassza ki a megfelelő
családi házat
Írjon a hirdetőnek
Várjon a visszahívásra