Eladó családi ház Siófok 119 000 000 Ft

Leírás

Eladó modern, felújított családi ház Siófok-Kilitiben, medencével, wellness részleggel és üzleti lehetőséggel!
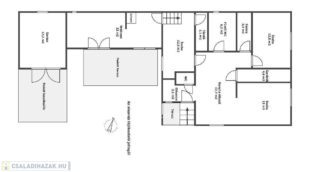
Siófok kertvárosi részén, Kilitiben kínálunk megvételre egy 106 m2-es, teljes körűen felújított, három szobás, modern stílusban kialakított családi házat 1089 m2-es telken. Az ingatlan kívül-belül megújult: a homlokzat hőszigetelést kapott, belül pedig mindenre kiterjedő átalakításon esett át, beleértve a gépészetet, burkolatokat és nyílászárókat. A háromrétegű műanyag ablakok kiváló hő- és hangszigetelést biztosítanak, így a ház télen-nyáron energiatakarékosan fenntartható.
Az otthon egyik rejtett értéke a fedett kerti medence, amely akár a hűvösebb hónapokban is használható. Emellett egy saját wellness részleg is helyet kapott az épületben, jakuzzival, szaunával és zuhannyal - tökéletes hely a kikapcsolódásra a mindennapok rohanása után. A fedett terasz kiváló lehetőséget nyújt baráti összejövetelekhez vagy egy nyugodt reggeli kávé elfogyasztásához.
A házhoz egy téglaépítésű garázs, valamint több új lemezgarázs is tartozik, így a tárolás és a parkolás sem okoz gondot. A gondozott, parkosított kert automata öntözőrendszerrel rendelkezik, a biztonságról pedig riasztó- és kamerarendszer gondoskodik. Az udvarban található egy különálló, szintén felújított melléképület is, amely tökéletes lehet magánvállalkozás indításához, műhelynek vagy akár irodának.
Az ingatlan távirányítású kapuval és térkövezett kocsibejáróval rendelkezik, megközelíthetősége kiváló: az M7-es autópálya csatlakozása mindössze 1,7 km-re (kb. 3 perc autóval), míg a Balaton partja és a strand csupán 4 km-re (kb. 7 perc) található. Ez a gondosan megtervezett és kivitelezett otthon ideális választás lehet családok számára, de azoknak is, akik könnyen elérhető helyen keresnek olyan ingatlant, amely akár üzleti célokat is kiszolgál. Otthon Start Hitelprogram Bővebb információért, megtekintésért keressen telefonon!

Referencia szám: M306612

Családi ház részletei

Ár: 119 000 000 Ft
Méret: 106 négyzetméter
Azonosító: 11546165
Irodai azonosító: M306612-4972981
Telek: 1089 négyzetméter
Ingatlan állapota: Kitűnő
Jelleg: családi ház
Építőanyag: Tégla
Fűtés jellege: Cirkó
Fűtés módja: Gáz
Komfort fokozat: Összkomfort
Kor: 50 évesnél régebbi
Szintek száma: Földszintes
Egész szobák: 3

Egyéb jellemzők

  • Garázs

Térkép


Így keressen családi házat négy egyszerű lépésben. Csupán 2 perc, kötelezettségek nélkül!

Szűkítse a családi házak
listáját
Válassza ki a megfelelő
családi házat
Írjon a hirdetőnek
Várjon a visszahívásra