Eladó családi ház Sátoraljaújhely 165 000 000 Ft

Leírás

Borsod-Abaúj-Zemplén vármegyében, Sátoraljaújhely városában eladásra kínálok egy 3397 nm nagyságú telken fekvő, 1292,13 nm nettó lakóterülettel rendelkező, befejezésre váró kastélyt.
Az ingatlan tele van lehetőségekkel, nagyon jó helyen fekszik, az alap tervek alapján ez egy apartmannak készült.
Hatalmas lehetőség a befektetni vágyók számára, hiszen, ha befejezik ezt a remek ötletet, nagyon hangulatos kis apartman lesz belőle, a kirándulni- vagy pihenni vágyók számára.
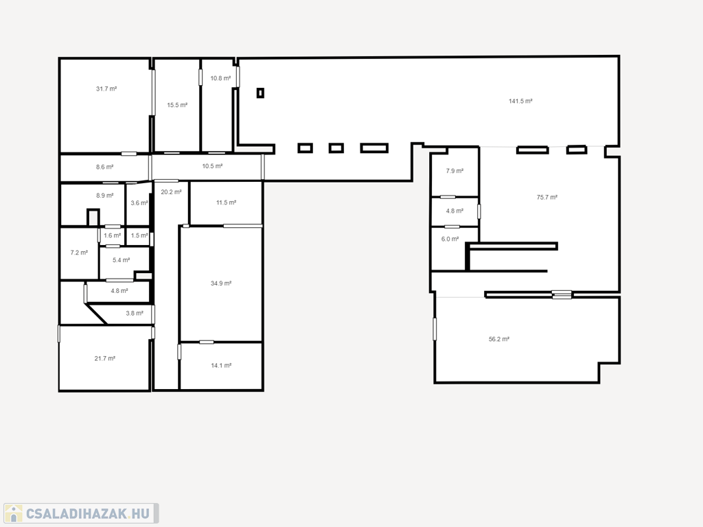
Helyiséglista:
• Ak. ment. WC 5,73 nm
• E.T. 2,28 nm
• E.T. 2,28 nm
• előtér 43,95 nm
• férfi WC 8,49 nm
• férfi öltöző 8,43 nm
• hús elők. 6,53 nm
• kazánház 15,09 nm
• kiadó 9,34 nm
• konyha 31,32 nm
• közlekedő 11,48 nm
• közlekedő 29,61 nm
• különterem 59,11 nm
• mosogatók 22,35 nm
• női WC 6,12 nm
• női öltöző 11,70 nm
• raktár 2,02 nm
• raktár 3,01 nm
• raktár 4,67 nm
• recepció 21,23 nm
• rekreációs tér 153,64 nm
• szauna 37,40 nm
• terasz 30,95 nm
• WC 1,41 nm
• WC 1,41 nm
• WC+ET 2,20 NM
• WC+ET 2,20 nm
• Zuh. 3,56 nm
• Zuh. 3,56 nm
• zöldségel.k. 2,36 nm
• étterem 108,44 nm
• öltöző 4,97 nm
• öltöző 4,97 nm
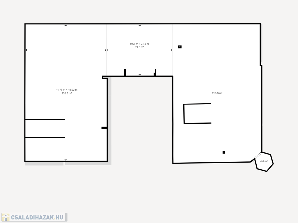
• Apartman1 29,26 nm
• Apartman2 29,81 nm
• Apartman3 32,94 nm
• Apartman4 22,13 nm
• Apartman5 28,39 nm
• Apartman6 24,46 nm
• Apartman7 31,89 nm
• Apartman8 29,74 nm
• Apartman9 22,54 nm
• Apartman10 19,83 nm
• Apartman11 19,24 nm
• Apartman12 19,24 nm
• Apartman13 19,46 nm
• Apartman14 21,89 nm
• Apartman15 25,24 nm
• közlekedő 99,87 nm
• raktár 4, 39nm
Összesen: 1292,12 NM

Családi ház részletei

Ár: 165 000 000 Ft
Méret: 1 292 négyzetméter
Azonosító: 11417071
Irodai azonosító: 316946
Telek: 3397 négyzetméter
Ingatlan állapota: Átlagos
Jelleg: kastély
Építőanyag: Kérdezzen rá a hirdetőtől »
Komfort fokozat: Dupla komfort

Így keressen családi házat négy egyszerű lépésben. Csupán 2 perc, kötelezettségek nélkül!

Szűkítse a családi házak
listáját
Válassza ki a megfelelő
családi házat
Írjon a hirdetőnek
Várjon a visszahívásra