Eladó családi ház Salgótarján 49 000 000 Ft

Leírás

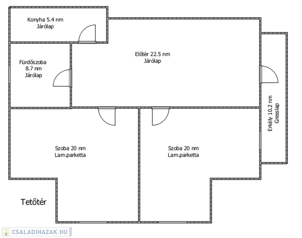
Salgótarjánban (Zagyvapálfalva), felújított, 3 szintes, 3 fürdőszobás, 4 szobás, 250 nm-es családi ház eladó!

A családi ház 1969-ben épült, 2000-ben teljes körű felújításon esett át, tégla szerkezetű, 4 cm-es külső szigeteléssel ellátott, cseréptetős, esztétikailag és gépészetileg felújított állapotú.

A külső nyílászárók műanyag profillal szereltek.

Az ingatlanban a fűtést gáz cirkó kazán, a meleg víz ellátást villanybojler biztosítja.

A ingatlanhoz tartozó 2516 nm-es dupla telek az épület mellett és mögött helyezkedik el, sík, körbekerített, területén melléképület és gépkocsibeálló található.

A TESCO, LIDL, SPAR, óvoda, iskola, posta, orvosi rendelő, gyógyszertár, buszmegálló 5 perc alatt gyalogosan elérhető.
(További képekért és információkért kérem hívjon!)

Családi ház részletei

Ár: 49 000 000 Ft
Méret: 250 négyzetméter
Azonosító: 11500211
Irodai azonosító: 405097
Erkély mérete: 10.00 négyzetméter
Telek: 2516 négyzetméter
Ingatlan állapota: Kitűnő
Jelleg: családi ház
Építőanyag: Tégla
Fűtés jellege: Cirkó
Egész szobák: 4

Egyéb jellemzők

  • Beépíthető tetőtér
  • Csatorna
  • Garázs
  • Melléképület
  • Pince
  • Terasz

Így keressen családi házat négy egyszerű lépésben. Csupán 2 perc, kötelezettségek nélkül!

Szűkítse a családi házak
listáját
Válassza ki a megfelelő
családi házat
Írjon a hirdetőnek
Várjon a visszahívásra