Eladó családi ház Salgótarján 46 900 000 Ft

Leírás

Salgótarjánban, a Beszterce lakótelepen, kiemelt lokációban, a Madzsar József úton, 2 szintes, 2+2 félszobás, 2 fürdőszobás, 82 nm-es, tehermentes norvég típusú sorház eladó.

Az ingatlan zöldövezeti környezetben, csendes, nyugodt utcában, távol az átmenő forgalom zajától, jó szomszédsággal rendelkező környezetben található.

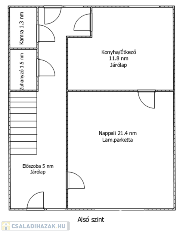
Helyiségei: az alsó szinten előszoba, zuhanyzó, nappali, konyha-étkező, kamra, az emeleten 1 szoba, 2 félszoba, beépített erkély, fürdőszoba, közlekedő. A tetőtérben egy további lakószint kialakítására van lehetőség (40 nm).

A sorház kiváló állapotú, külső falai szigeteltek (8 cm). Az ablakok műanyag profillal szereltek.

A fűtést gázkonvektorok, a meleg víz ellátást villanybojler biztosítja.

Az ingatlan szélső sorház, ezért a hozzá tartozó telek szélesebb.

Az épület előtt található, külön helyrajzi számmal rendelkező garázs a vételár részét képezi.

A garázs kizárólag az ingatlannal együtt eladó!

A lakótelepen bevásárlási lehetőség (SPAR, COOP), orvosi rendelő, gyógyszertár, általános iskola, óvoda, buszmegálló, strand található.
(További képekért és információkért kérem hívjon!)

Családi ház részletei

Ár: 46 900 000 Ft
Méret: 122 négyzetméter
Azonosító: 11542559
Irodai azonosító: 704571
Erkély mérete: 2.00 négyzetméter
Telek: 300 négyzetméter
Ingatlan állapota: Felújított
Jelleg: sorház
Építőanyag: Tégla
Fűtés jellege: Konvektoros
Egész szobák: 4

Egyéb jellemzők

  • Beépíthető tetőtér
  • Csatorna
  • Garázs
  • Melléképület
  • Pince
  • Terasz

Így keressen családi házat négy egyszerű lépésben. Csupán 2 perc, kötelezettségek nélkül!

Szűkítse a családi házak
listáját
Válassza ki a megfelelő
családi házat
Írjon a hirdetőnek
Várjon a visszahívásra