Eladó családi ház Salgótarján 38 000 000 Ft

Leírás

Salgótarjánban (Forgách telep), kiváló adottságokkal rendelkező, 148 nm hasznos alapterületű, 6 szobás, 2 szintes, tehermentes családi ház eladó!

Az ingatlan egy cca. 900 nm-es, lankás telken helyezkedik el, csendes, családbarát környezetben. A telken melléképületek, több autó számára felszíni beálló található.

A családi ház két önálló lakrészre osztott, ezáltal, akár több generáció harmonikus együttélésére vagy otthoni vállalkozás működtetésére is ideális lehet.

A földszinten a nappali, 2 hálószoba, fürdőszoba, konyha, közlekedő, tároló és műhely/kazánház került kialakításra.

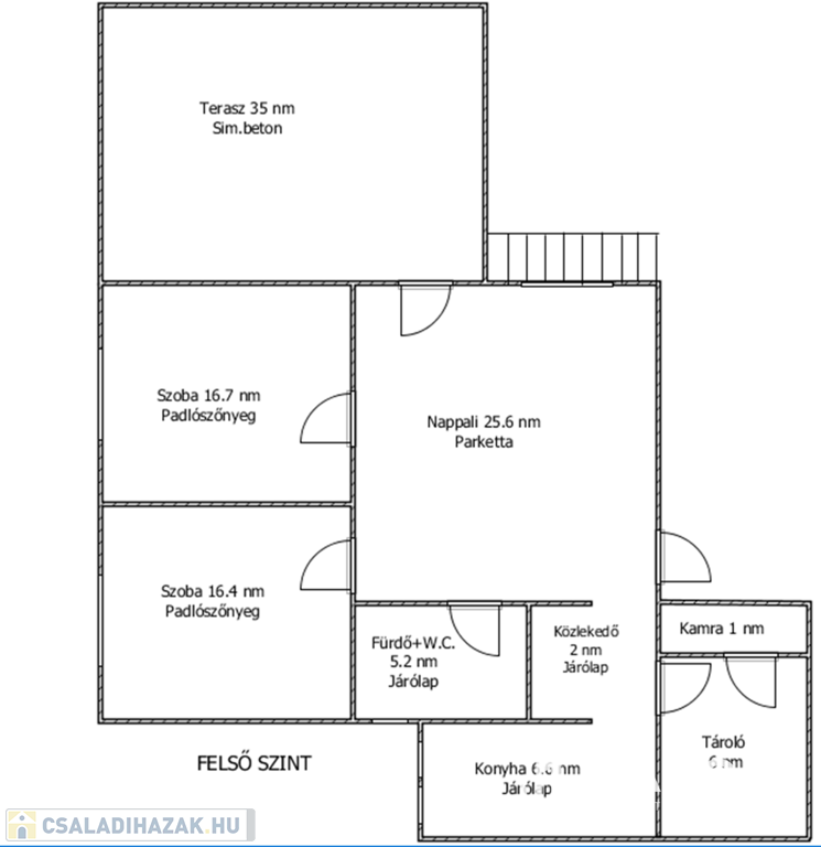
Az emeleti szinten nappali, 2 kényelmes hálószoba, fürdőszoba, konyha, közlekedő és tároló kapott helyet.

Az emeleten nappali kapcsolatos, 35 nm-es, részben fedett terasz található.

A ház műszakilag jó állapotú, szerkezete stabil és masszív. Téglából épült, 8 cm külső hőszigeteléssel ellátott. A nyílászárók korszerű, hő- és hangszigetelt műanyag ablakok. A fűtést gáz kombi cirkó kazán, a meleg víz ellátást villanybojler biztosítja, de alternatív megoldásként vegyes tüzelésű kazán és kandalló is rendelkezésre áll, így a fűtési rendszer rugalmasan használható.

A ház 70'-es években épült, jó állapotú, azonban, igény szerint esztétikai felújítás szükséges lehet.

Ez az otthon ideális választás lehet nagycsaládosok számára, többgenerációs együttéléshez, vagy olyanoknak, akik külön bejáratú lakrészt keresnek otthoni vállalkozáshoz.

A ház tágas, jól kihasználható, a környék csendes, mégis jól ellátott – mindössze 5 perc távolságra Salgótarján központjától.

A ház per-és tehermentes, a további részletekért kérem hívjon.
(További képekért és információkért kérem hívjon!)

Családi ház részletei

Ár: 38 000 000 Ft
Méret: 148 négyzetméter
Azonosító: 11548910
Irodai azonosító: 461532
Erkély mérete: 35.00 négyzetméter
Telek: 900 négyzetméter
Ingatlan állapota: Felújítandó
Jelleg: családi ház
Építőanyag: Tégla
Fűtés jellege: Cirkó
Egész szobák: 5
Nappalik: 1

Egyéb jellemzők

  • Beépíthető tetőtér
  • Csatorna
  • Garázs
  • Melléképület
  • Pince
  • Terasz

Így keressen családi házat négy egyszerű lépésben. Csupán 2 perc, kötelezettségek nélkül!

Szűkítse a családi házak
listáját
Válassza ki a megfelelő
családi házat
Írjon a hirdetőnek
Várjon a visszahívásra