Eladó családi ház Salgótarján 26 900 000 Ft

Leírás

Salgótarjánban 106 nm-es, 2 szintes, összközműves, tehermentes, azonnal birtokba vehető családi ház eladó!

Az épület 80'-as években épült, összközműves, vályog+tégla szerkezetű, cseréptetős, statikailag kiváló állapotú.

Az elmúlt években a külső nyílászárókat műanyagra cserélték, a vízvezeték hálózatot és a fürdőszobákat felújították.

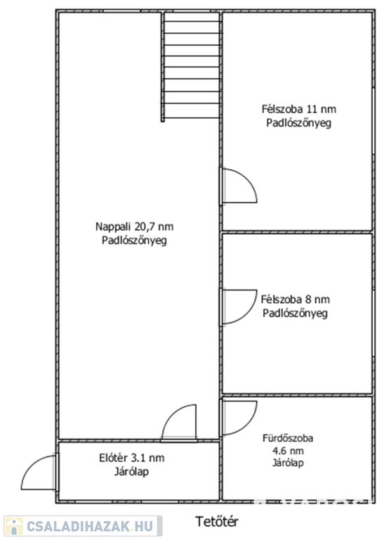
Helyiségei: az alsó szinten 1 szoba, konyha, étkező, kamra, fürdőszoba, külön nyíló W.C., előszoba, a felső szinten 1 szoba, 2 félszoba, fürdőszoba, előtér.

A két szint külön bejárattal rendelkezik, ezáltal az ingatlan, akár több generáció harmonikus együttélését is biztosíthatja.

A fűtést és a meleg víz ellátást gáz kombi cirkó kazán biztosítja. Alternatív lehetőségként az alsó szint kanadallóval is fűthető.

Az ingatlanhoz tartozó telek 692 nm nagyságú, nagyobb részben az épület mögött helyezkedik el, lankás, füvesített.

Az épület mellett gépkocsibeálló és garázs található.

A városközpont autóval 5 perc. Buszmegálló 100 méterre található.
(További képekért és információkért kérem hívjon!)

Családi ház részletei

Ár: 26 900 000 Ft
Méret: 106 négyzetméter
Azonosító: 11533264
Irodai azonosító: 593622
Telek: 692 négyzetméter
Ingatlan állapota: Felújított
Jelleg: családi ház
Építőanyag: Tégla
Fűtés jellege: Cirkó
Egész szobák: 4

Egyéb jellemzők

  • Beépíthető tetőtér
  • Csatorna
  • Garázs
  • Melléképület
  • Pince
  • Terasz

Így keressen családi házat négy egyszerű lépésben. Csupán 2 perc, kötelezettségek nélkül!

Szűkítse a családi házak
listáját
Válassza ki a megfelelő
családi házat
Írjon a hirdetőnek
Várjon a visszahívásra