Eladó családi ház Salgótarján 25 000 000 Ft

Leírás

Salgótarján kertvárosában eladó egy remek adottságokkal rendelkező családi ház – alakítsd ki a saját stílusod szerint!

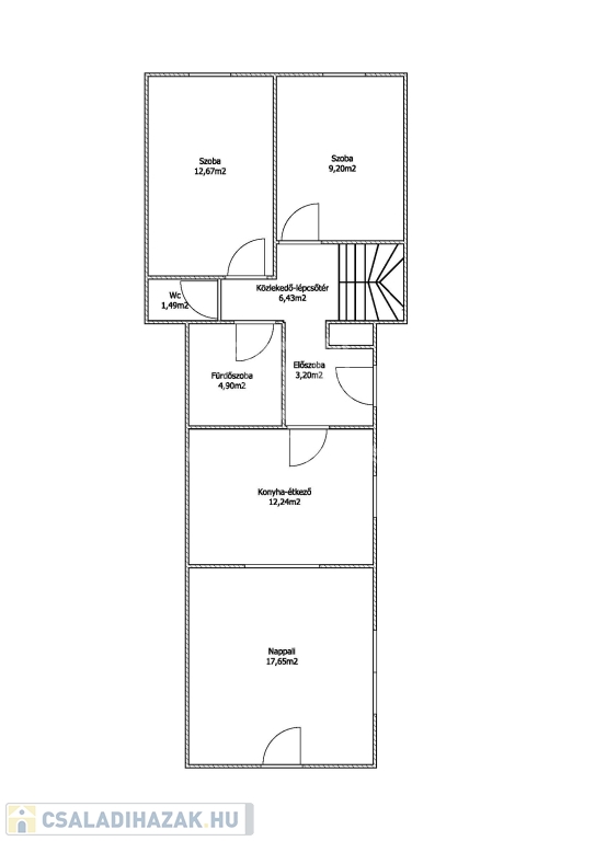
Csendes zsákutcában, nyugodt környezetben, mégis jó elhelyezkedéssel várja új tulajdonosát ez a bruttó 119 m²-es, részben vályog-, részben téglaépítésű ház. A tégla részt kb. 15 éve építették hozzá, így az ingatlan stabil, jól kihasználható.

A nettó lakótér 95,5 m², de ami igazán izgalmassá teszi: a tetőtérben egy 43,5 m²-es padlástér is rendelkezésre áll, amit igény szerint beépíthetsz – akár külön szobákat, otthoni irodát vagy kreatív teret is kialakíthatsz belőle.

A külső szigetelés még nincs kész, de ez inkább lehetőség, mint hátrány – így teljesen a saját elképzeléseid szerint alakíthatod ki a homlokzatot is.

Ez az ingatlan tökéletes választás lehet:
– ha szeretnél egy saját otthont, amit magadra formálhatsz
– ha fontos számodra a csendes környék és a kertvárosi hangulat
– ha jó ár-érték arányú házat keresel, amiben van még lehetőség és fantázia

Fiatal pároknak, első otthonvásárlóknak vagy akár kisebb családnak is ideális választás!

Ne csak nézd – gyere, nézd meg élőben, és lásd meg benne a lehetőséget!

Családi ház részletei

Ár: 25 000 000 Ft
Méret: 96 négyzetméter
Azonosító: 11338777
Irodai azonosító: 339073
Cím: Mikóvölgyi út
Telek: 1500 négyzetméter
Ingatlan állapota: Átlagos
Jelleg: családi ház
Építőanyag: Kérdezzen rá a hirdetőtől »
Fűtés jellege: Egyedi
Komfort fokozat: Összkomfort
Kor: 11-20 éves
Szintek száma: 2 szint
Egész szobák: 2
Fél szobák: 2

Egyéb jellemzők

  • Csatorna
  • Garázs
  • Pince
  • Terasz

Térkép


Így keressen családi házat négy egyszerű lépésben. Csupán 2 perc, kötelezettségek nélkül!

Szűkítse a családi házak
listáját
Válassza ki a megfelelő
családi házat
Írjon a hirdetőnek
Várjon a visszahívásra