Eladó családi ház Salgótarján 22 900 000 Ft

Leírás

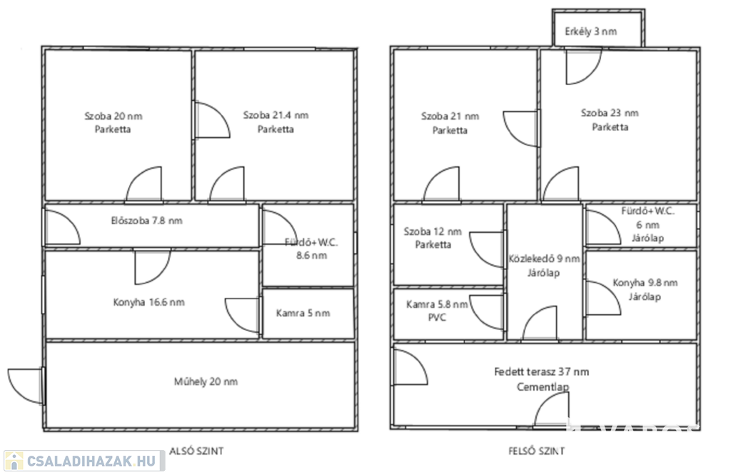
Salgótarjánban (Béke krt.) 165 nm-es, 5 szobás, teljes körű felújítást igénylő, tégla+kő szerkezetű, tehermentes, azonnal birtokba vehető családi ház eladó!

Helyiségei: az alsó szinten 2 szoba, előszoba, fürdőszoba, konyha, kamra, műhely, a felső szinten 3 szoba, erkély, előszoba, konyha, kamra, fürdőszoba, fedett terasz.

Az épület teljes esztétikai és gépészeti felújítást igényel. Az alsó szint falazata kő, a felső szint tégla.

A fűtést és a meleg víz ellátást gáz kombi cirkó kazán biztosítja.

Az ingatlanhoz tartozó cca. 800 nm-es telek, körbekerített, területén dupla garázs, gazdálkodásra alkalmas melléképületek, termő gyümölcsfák, pince található.
(További képekért és információkért kérem hívjon!)

Családi ház részletei

Ár: 22 900 000 Ft
Méret: 165 négyzetméter
Azonosító: 11593267
Irodai azonosító: 978276
Erkély mérete: 4.00 négyzetméter
Telek: 800 négyzetméter
Ingatlan állapota: Felújítandó
Jelleg: családi ház
Építőanyag: Tégla
Fűtés jellege: Cirkó
Egész szobák: 5

Egyéb jellemzők

  • Beépíthető tetőtér
  • Csatorna
  • Garázs
  • Melléképület
  • Pince
  • Terasz

Így keressen családi házat négy egyszerű lépésben. Csupán 2 perc, kötelezettségek nélkül!

Szűkítse a családi házak
listáját
Válassza ki a megfelelő
családi házat
Írjon a hirdetőnek
Várjon a visszahívásra