Eladó családi ház Sajószentpéter 31 000 000 Ft

Leírás


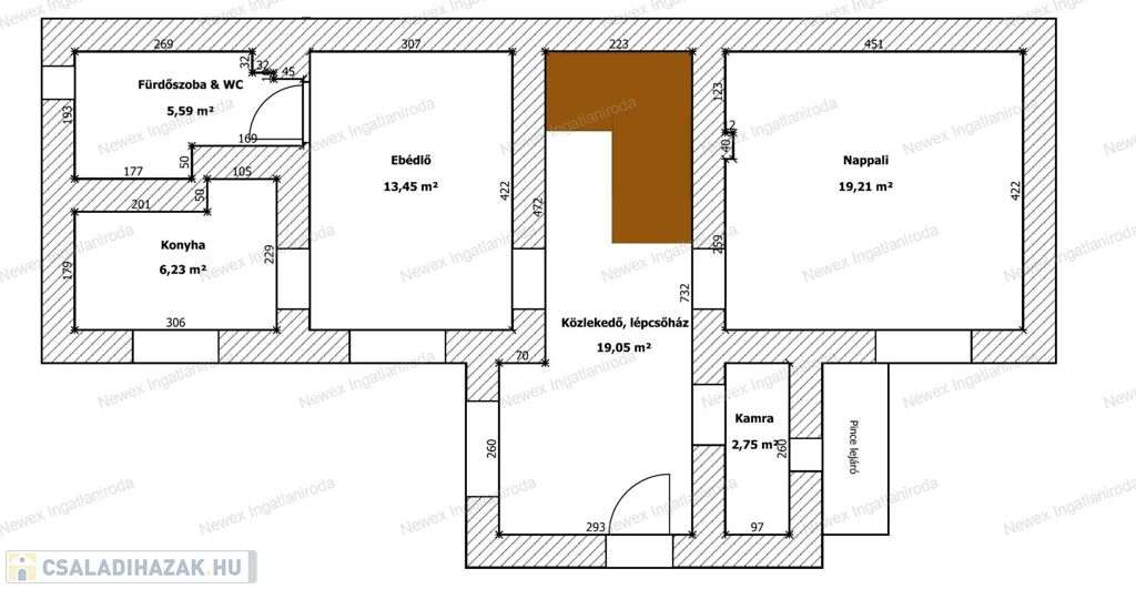
Eladó Sajószentpéter Belvárosában egy 94 m² alapterületű, tégla építésű családi ház, amely 1 221 m²-es telken helyezkedik el. Az ingatlan felújítandó állapotban van, így új tulajdonosa saját elképzelései szerint újíthatja fel és alakíthatja ki a belső tereket.

 

A házban három különálló szoba található, amelyek jól alakítható életteret biztosítanak család számára. A helyiségek elrendezése praktikus, a nagy telekméret pedig lehetőséget ad kert kialakítására, bővítésre vagy akár további fejlesztésre is.

 

A telek délnyugati tájolású, ennek köszönhetően a ház világos, napfényes. A környezet csendes, ugyanakkor a belvárosi elhelyezkedés miatt a boltok, iskola, óvoda és egyéb szolgáltatások rövid időn belül elérhetők.

 

A fűtésről cirkó rendszer gondoskodik. Az ingatlan összkomfortos, minden közmű rendelkezésre áll. A parkolás garázsban megoldott, ami a központi elhelyezkedés mellett külön előnyt jelent.

 

 Az elérhető irányár 31 000 000 Ft, ami figyelembe véve a telket és a ház adottságait, kiváló befektetési lehetőséget kínál. Ne hagyja ki ezt az alkalmat, hogy saját otthona tervezésébe kezdjen!

Családi ház részletei

Ár: 31 000 000 Ft
Méret: 94 négyzetméter
Azonosító: 11602282
Irodai azonosító: 698900766
Telek: 1221 négyzetméter
Ingatlan állapota: Felújítandó
Jelleg: családi ház
Építőanyag: Tégla
Fűtés jellege: Cirkó
Komfort fokozat: Összkomfort
Egész szobák: 3

Így keressen családi házat négy egyszerű lépésben. Csupán 2 perc, kötelezettségek nélkül!

Szűkítse a családi házak
listáját
Válassza ki a megfelelő
családi házat
Írjon a hirdetőnek
Várjon a visszahívásra