Eladó családi ház Sajószentpéter 27 600 000 Ft

Leírás


Sajószentpéteren, az edelényi elágazás közelében, egy 1200 m²-es telken két különálló családi ház eladó. Az ingatlan ideális választás lehet több generáció együttélésére, befektetésre vagy akár bérbeadásra is, hiszen a két ház egymástól függetlenül használható.

 

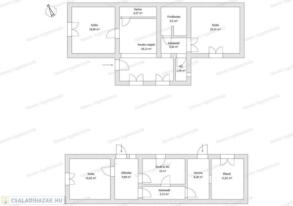
A telken található épületek 79 m² és 60 m² alapterületűek, az udvar két oldalán, egymással szemben helyezkednek el, így mindkét ház külön életteret biztosít.



Telek

A 1200 m²-es telek hátsó része mintegy 800 m², amely bőséges lehetőséget kínál:

- kertészkedésre

- pihenőkert kialakítására

- további melléképületek vagy garázs építésére

Az udvaron jelenleg lemezgarázs található, de a nagy telek miatt további parkolóhelyek vagy garázsok kialakítása is könnyen megoldható.



Közművek

A két ház külön villany- és gázórával rendelkezik, ami jelentősen megkönnyíti a külön használatot vagy bérbeadást.

A vízóra közös.



Nagyobb családi ház - 79 m²

Az ingatlan összkomfortos, átlagos állapotú, azonnal lakható.

Elrendezése:

- 2 tágas szoba

- kényelmes konyha

- külön fürdőszoba és WC



Jellemzők:

- gázcirkó fűtés, téli fűtési költség kb. 25 000 Ft/hó

- műanyag nyílászárók



Kisebb családi ház – 60 m²

Ez az épület felújítandó állapotú, így új tulajdonosa saját elképzelései szerint alakíthatja.

Elrendezése:

- 1 tágas szoba

- előszoba

- konyha étkezővel

- fürdőszoba és WC egyben



Jellemzők:

- konvektoros fűtés

- villanybojler biztosítja a melegvizet

- fa nyílászárók



Fontos tudnivalók

Mindkét épület esetében a homlokzat és a tető héjazat felújítása időszerű, amely remek lehetőséget ad arra, hogy az új tulajdonos saját ízlése szerint korszerűsítse az ingatlanokat.

Családi ház részletei

Ár: 27 600 000 Ft
Méret: 138 négyzetméter
Azonosító: 11605811
Irodai azonosító: 698900782
Telek: 1200 négyzetméter
Ingatlan állapota: Átlagos
Jelleg: családi ház
Építőanyag: Kérdezzen rá a hirdetőtől »
Fűtés jellege: Cirkó
Komfort fokozat: Összkomfort
Egész szobák: 2

Így keressen családi házat négy egyszerű lépésben. Csupán 2 perc, kötelezettségek nélkül!

Szűkítse a családi házak
listáját
Válassza ki a megfelelő
családi házat
Írjon a hirdetőnek
Várjon a visszahívásra