Eladó családi ház Sajószentpéter 14 400 000 Ft

Leírás


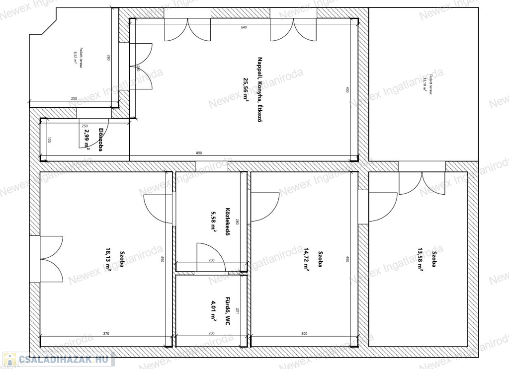
Sajószentpéter Fecskeszög városrészében kínálunk megvételre egy 84 m²-es, háromszobás családi házat, amely tégla és szilikát szerkezetű. Az ingatlan külső állapota átlagos, azonban teljes szigeteléssel rendelkezik, így energiahatékonysága kimagasló.

 

A ház egyik fő előnye, hogy 2022-ben teljes villamoshálózat- és nyílászáró korszerűsítésen esett át, ami nagyobb biztonságot és kényelmet nyújt a mindennapokban. A vegyes tüzelésű fűtés gazdaságos megoldást biztosít, így a fűtési költségek kedvezően alakulnak.

 

Az ingatlan utcafronti kilátással, jó közlekedési kapcsolatokkal és saját udvari parkolóhellyel rendelkezik, ami mind hozzájárul a kényelmes életvitelhez. Az északkeleti tájolás pedig kellemes, természetes fényt biztosít a belső terekben. Fontos megjegyezni, hogy az épület nem akadálymentesített.

 

Keressen bizalommal további információért és megtekintési időpontért!

Családi ház részletei

Ár: 14 400 000 Ft
Méret: 84 négyzetméter
Azonosító: 11552242
Irodai azonosító: 698900663
Telek: 960 négyzetméter
Ingatlan állapota:
Jelleg: családi ház
Építőanyag: Tégla
Fűtés jellege: Egyedi
Komfort fokozat: Komfort
Egész szobák: 3

Így keressen családi házat négy egyszerű lépésben. Csupán 2 perc, kötelezettségek nélkül!

Szűkítse a családi házak
listáját
Válassza ki a megfelelő
családi házat
Írjon a hirdetőnek
Várjon a visszahívásra