Eladó családi ház Sajószentpéter 119 000 000 Ft

Leírás

Új építésű ÖKO-KERÁMIA családi ház ELADÓ Sajószentpéteren, csendes utcában, de a városközponthoz közel!

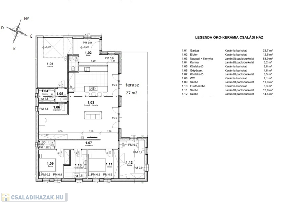
A ház három különálló szobával és egy 60 négyzetméteres nappali-étkező-konyhával rendelkezik. Emellett egy 24 négyzetméteres garázs, és egy impozáns 27 négyzetméteres terasz is a házhoz tartozik.

A házban több zónás elektromos padlófűtés található, zónánként termosztáttal ellátva, továbbá fokozott hőszigetelésű hat légkamrás nyílászárók. A rezsiköltség minimalizálása és a fenntarthatóság érdekében közel 15 kWh-nyi napelem rendszer biztosítja az energiát.

A külső falak megerősített kerámia kompozit anyagból készültek, melyek hőszigetelő képessége már önmagában is az átlagostól kedvezőbb, de ezen felül az épület 13 cm-es, a födém pedig 40 cm-es kőzetgyapot szigetelést kapott. A tető szerkezete cserepes lemez. Kiemelendő még az az okos szellőzőrendszer, amely a nappali-étkező-konyha helyiségében található.

A 956 m2-es telek parkosításra előkészítve várja leendő tulajdonosát, az utcafront felől betonkerítéssel övezve, járdával és térkövezve. A telekre a garázshoz vezető kapun kívül egy másik kapun keresztül is be lehet parkolni, így egy vendég autónak is van hely.

Az ingatlan alkalmas családalapítás előtt álló fiatal pároknak, illetve több gyermekes családoknak egyaránt. A ház Miskolchoz és Kazincbarcikához is közel van, egyesíti a vidék csendességét és a városi infrastruktúra iránti igényeket.

Ha felkeltette az érdeklődését az ingatlan, keressen bizalommal! Ha önnek is van eladó ingatlana, az értékesítésben is állok rendelkezésre!

Családi ház részletei

Ár: 119 000 000 Ft
Méret: 169 négyzetméter
Azonosító: 11557429
Irodai azonosító: 386061
Cím: Szondy György utca
Telek: 956 négyzetméter
Ingatlan állapota: Kitűnő
Jelleg: családi ház
Építőanyag: Kérdezzen rá a hirdetőtől »
Fűtés jellege: Egyedi
Komfort fokozat: Összkomfort
Kor: Új építésű
Szintek száma: Földszintes
Egész szobák: 3
Fél szobák: 1

Egyéb jellemzők

  • Csatorna
  • Garázs
  • Pince
  • Terasz

Térkép


Így keressen családi házat négy egyszerű lépésben. Csupán 2 perc, kötelezettségek nélkül!

Szűkítse a családi házak
listáját
Válassza ki a megfelelő
családi házat
Írjon a hirdetőnek
Várjon a visszahívásra