Eladó családi ház Ráckeve 81 600 000 Ft

Leírás

Eladó új építésű önálló családi házak Ráckevén!

Most épülő új lakóparkban kínálunk megvételre új építésű, önálló családi házakat. 16 db telek van a kivitelező tulajdonában, melyek 800-1000 nm közöttiek, ön még választhat!

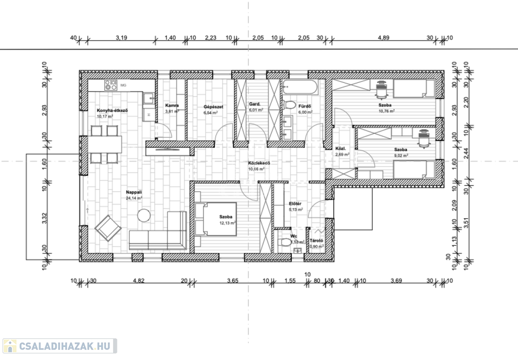
A választható ingatlanok alaprajz szerint:
1,- nappali + 2 hálószobás kialakítás nettó 102 nm - 81.600.000.-Ft,
2,- nappali + 3 hálószobás kialakítás nettó 110 nm - 88.000.000.-Ft,

A belső falak jelenleg még az ön igényei szerint alakíthatóak, illetve ha nagyobb alapterületű ingatlanra van szüksége az is kivitelezhető.

Műszaki paraméterek:
- porotherm 30-as tégla falak, 15 cm külső szigetelés,
- műanyag 3 rétegű nyílászárók redőnnyel, szúnyoghálóval szerelve,
- fűtést és a melegvizet gázkazán biztosítja padlófűtéses hőleadással,
- 3 db hűtő-fűtő klíma,
- burkolatok 10.000.-Ft/nm árig,
- beltéri ajtók 150.000.Ft/db árig,
- bejárati ajtó 300.000.-Ft -ig,
- szaniterek -Mofém,Grohe, vagy Alföldi tipusok kerülnek beépítésre,
- terasz burkolva,
- 1 autónak térkövezett beálló,
- oldalt beton kerítés, elől WPC,

Opcionálisan kérhető:
- Hibrid fűtésrendszer- a gázfűtés mellé hőszivattyút is szerelnek, ennek ára: 1.350.000.-Ft,
- 3 Kw napelem felszerelése 1.500.000.-Ft,
- belsőépítészeti munák a mellékelt fotók alapján, ennek ára megegyezés szerint.

A telkek közötti térkövezett utat ( 5 méter széles) , és a járdákat a kivitelező építi. A tulajdonos célja egy zárt lakópark kialakítása ahol a tervek alapján egy magánbölcsöde is épül.

Birtokbaadás: 2026. negyedik negyedéve.

Iskola, óvoda, orvosi rendelő, Penny, buszmegálló 5-10 perc sétával elérhető.

Amivel segítjük az Ön ingatlanvásárlását:
- ingyenes hitelügyintézés,
- jogi háttér,
- földhivatali ügyintézés,
- energetikai tanúsítvány,
- a vevő számára az ingatlanközvetítés ingyenes.

Irodánk 30 éves szakmai tapasztalattal áll ügyfelei rendelkezésére!

Várom szíves megkeresését!

Családi ház részletei

Ár: 81 600 000 Ft
Méret: 102 négyzetméter
Azonosító: 11578020
Irodai azonosító: 389103
Cím: Szent Vendel út közelében
Telek: 836 négyzetméter
Ingatlan állapota: Kitűnő
Jelleg: családi ház
Építőanyag: Tégla
Fűtés jellege: Héra
Fűtés módja: Gáz
Komfort fokozat: Összkomfort
Kor: Új építésű
Szintek száma: Földszintes
Egész szobák: 3

Egyéb jellemzők

  • Csatorna
  • Garázs
  • Pince
  • Terasz

Térkép


Így keressen családi házat négy egyszerű lépésben. Csupán 2 perc, kötelezettségek nélkül!

Szűkítse a családi házak
listáját
Válassza ki a megfelelő
családi házat
Írjon a hirdetőnek
Várjon a visszahívásra