Eladó családi ház Ráckeve 80 000 000 Ft

Leírás

RÁCKEVÉN ÚJ ÉPÍTÉSŰ TORNÁCOS CSALÁDI HÁZ ELADÓ!
KIVÁLÓ KIVITELEZŐ, VERSENYKÉPES ÁRON, KIVÁLÓ OTTHONT AJÁNL ÖNNEK! CSOK +, HŐSZIVATTYÚ!

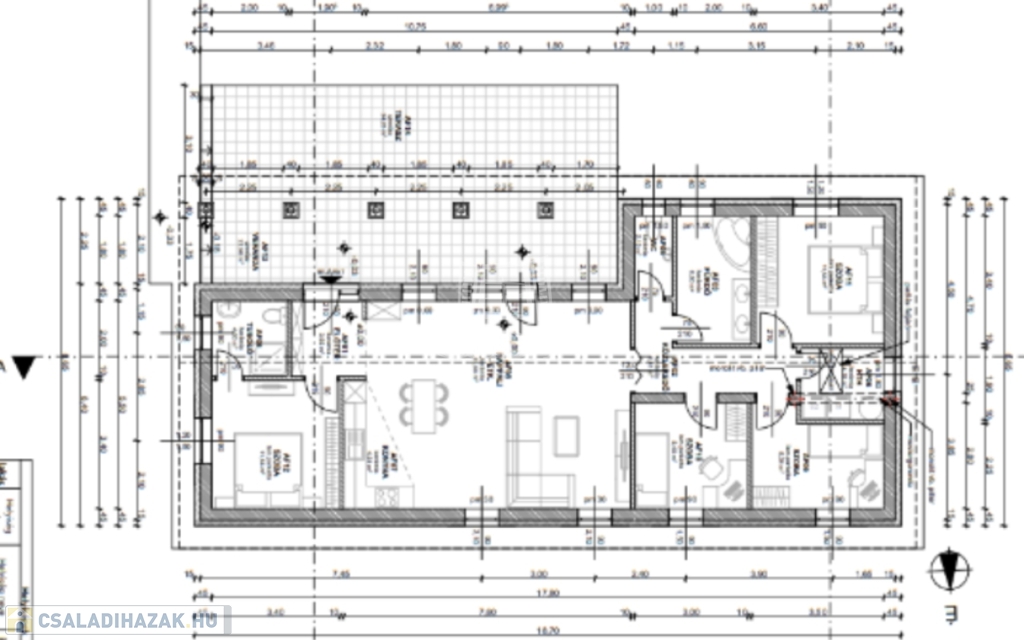
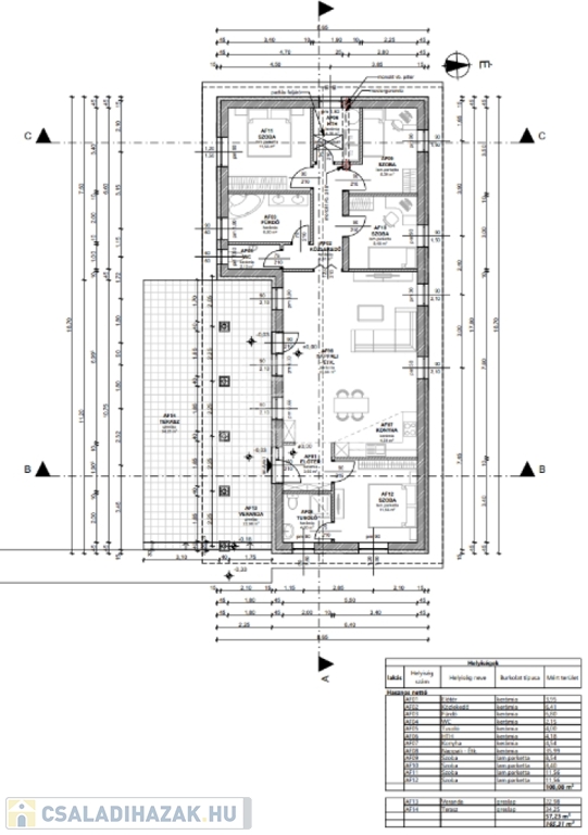
Ráckevén kínálom megvételre új építésű nettó 108 m2 alapterületű, tornácos, modern családi házat, 1105 m2 körülkerített telken.
AZ ÉPÍTKEZÉS MÁR ELKEZDŐDÖTT JÖJJÖN EL NÉZZE MEG, NE MARADJON LE RÓLA!

Az otthon nettó 108,08 m2 lakótérrel, 57.23 m2 részben fedett teraszkapcsolattal, 1105 m2 körülkerített teleken épül meg.
Helyiségei: előszoba 3,95 m2, közlekedő 6,45 m2, fürdőszoba 6,80 m2, wc 2,15 m2, tusoló 4,00 m2 háztartási helyiség 4,18 m2, konyha 4,54 m2,nappali/étkező 35,99 m2, szoba 8,40 m2,
szoba 8,54 m2, szoba 11,56 m2, szoba 11,56 m2, terasz 57,23 m2.

A telek ideális 1105 négyzetméteres, a szomszédot csak akkor látjuk és halljuk ha mi is szeretnénk, a teraszon zavartalanul pihenhetünk.

Az épület Leier 30 téglából épül, fafödémmel, cserépfedésű tetővel. A homlokzaton 10 cm-es grafitos Dryvit rendszerű hőszigeteléssel, 30 cm vastag szálas szerkezetű födémszigeteléssel az aljzatban pedig 10 cm lépésálló szigetelés kerül beépítésre.

Műszaki tartalom:
-Hideg burkolatok 4.500.- Ft/nm meleg burkolatok 3.500.- Ft/nm
-Fűtés hőszivattyú, hőleadás padlófűtés.
-Homlokzati nyílászárók, fehér színű műanyag nyílászárók három rétegű üvegezéssel.
-Belső falak 2x glettelve fehérre festve.
-A telek körülkerítve, utcafronton épített kerítés 4 m széles kapu és személy bejáró.
-Kaputól a bejáratig járda.
-A telek alap tereprendezéssel kerül átadásra.
-Szaniterek keretösszegig választhatók

Várható átadás 2026 május.

Várom megtisztelő hívását!

FINANSZÍROZÁS:
Nálunk mindent egy helyen intézhet:
- hivatalos ingatlanközvetítés;
- szakszerű jogi képviselet;
- profi CSOK-PLUSZ, és hitelügyintézés: 16 Bank, több mint 100 konstrukció;

Családi ház részletei

Ár: 80 000 000 Ft
Méret: 108 négyzetméter
Azonosító: 11568034
Irodai azonosító: 387775
Cím: Pest megye
Telek: 1105 négyzetméter
Ingatlan állapota: Kitűnő
Jelleg: családi ház
Építőanyag: Tégla
Fűtés jellege: Geotermikus
Fűtés módja: Hőszivattyú
Komfort fokozat: Dupla komfort
Kor: Új építésű
Szintek száma: Földszintes
Egész szobák: 5

Egyéb jellemzők

  • Csatorna
  • Garázs
  • Pince
  • Terasz

Térkép


Így keressen családi házat négy egyszerű lépésben. Csupán 2 perc, kötelezettségek nélkül!

Szűkítse a családi házak
listáját
Válassza ki a megfelelő
családi házat
Írjon a hirdetőnek
Várjon a visszahívásra