Eladó családi ház Ráckeve 99 900 000 Ft

Leírás

Eladó ingatlan a Duna partján, lenyűgöző erkélyes panorámával és magas műszaki tartalommal!

Ez a különleges ingatlan a vízpart mellett 50 méterre helyezkedik el, így részben közvetlen kilátást nyújt a Ráckevei Dunaágra. Az épület kiemelkedően magas műszaki tartalommal rendelkezik, amely garantálja a hosszú távú kényelmet és biztonságot. A fejlesztés során a legmodernebb technológiákat és prémium minőségű anyagokat használták fel, amelyet a referencia munkák is alátámasztanak. Csak néhány technológia a sok közül: hőszivattyú, padlófűtés, hűtő-fűtő klímák, 6 légkamrás színes műanyag nyílászárók 1.0-ás hőszigetelt üvegezéssel, vakolható-tokos elektromos redőnnyel...

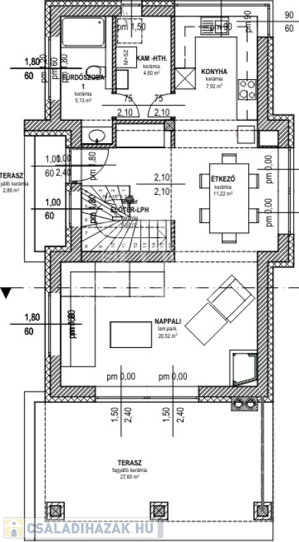
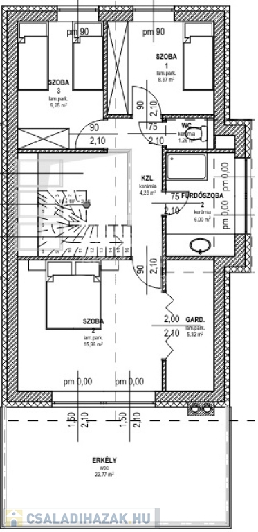
Az ingatlan dupla komfortos kialakítású, így két teljesen felszerelt fürdőszobával rendelkezik, ami növeli a kényelmet és a praktikumot, különösen nagyobb családok vagy vendégek esetén. Az épület tervezése és kivitelezése során nagy figyelmet fordítottak a funkcionalitásra és az esztétikára egyaránt.

Az ingatlanhoz ajándékként egy saját stég is tartozik, ami 200 méterre található az épülettől. Ideális a vízi sportok szerelmeseinek vagy azoknak, akik szeretnének közvetlenül a víz mellől horgászni vagy csak élvezni a nyugalmat a Ráckevei Dunaág partján.

Az ingatlan egy üdülőövezetben található, így garantált a pihenés és a kikapcsolódás minden évszakban. Ha szeretné megtekinteni a részletes műszaki leírást, kérem vegye fel velem a kapcsolatot, és elküldöm Önnek.

Ez a különleges ajánlat ideális választás mindazoknak, akik egy exkluzív és nyugodt vízparti ingatlanra vágynak, amely minden igényt kielégít a luxus és a kényelem terén.
Hitelképes, vegye igénybe INGYENES szolgáltatásainkat!
Amennyiben felkeltettem érdeklődését, keressen bizalommal.
Ha nem veszem fel, visszahívom!
ID: 369341

Családi ház részletei

Ár: 99 900 000 Ft
Méret: 135 négyzetméter
Azonosító: 11395739
Irodai azonosító: 369341
Cím: Sólyomsziget
Telek: 430 négyzetméter
Ingatlan állapota: Átlagos
Jelleg: családi ház
Építőanyag: Tégla
Fűtés jellege: Geotermikus
Fűtés módja: Hőszivattyú
Komfort fokozat: Dupla komfort
Kor: 1-5 éves
Szintek száma: 1 szint
Egész szobák: 4

Egyéb jellemzők

  • Csatorna
  • Garázs
  • Pince
  • Terasz

Térkép


Így keressen családi házat négy egyszerű lépésben. Csupán 2 perc, kötelezettségek nélkül!

Szűkítse a családi házak
listáját
Válassza ki a megfelelő
családi házat
Írjon a hirdetőnek
Várjon a visszahívásra