Eladó családi ház Pilisszántó 129 900 000 Ft

Leírás

PILISSZÁNTÓN ELADÓ EGY ÖNÁLLÓ CSALÁDI HÁZ!



A KÖRNYÉK:



Pilisszántón egy nyugodt, zöldövezeti környezetben, de mégis aszfaltozott úton helyezkedik el, a házból gyönyörű panoráma nyílik az egész pilisre. Buszmegálló 19 perc sétára helyezkedik el, ahonnan busszal könnyen megközelíthető Budapest is.





A HÁZ JELLEMZŐI:



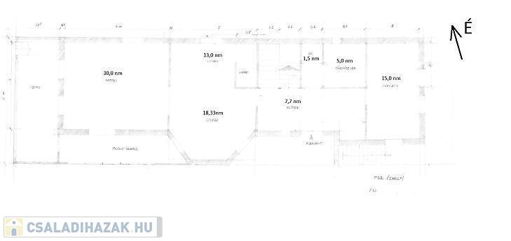
- A ház alapterülete 200 nm.

-Plusz egy 100 nm-es szuterén, ahol egy 40 nm-es dupla beállásos garázs is található.

-Plusz egy 22 nm-es fedett, és egy 17 nm-es beépített terasz.

-Telek mérete: 850 nm.

-1996-ban épült, 30-as Ytong téglából, 4 cm-es perlites vakolatot kapott.

-A tetőt szürke Bramac betoncserép fedi.

-A fűtésért egy gázkazán felel, a csövezete réz.

-A radiátorok újak, nemrég cserélésre kerültek.

-A melegvizet egy Arison hőszivattyús bojler, illetve egy villanybojler is elő tudja állítani.

-A nappaliban, illetve a tetőtérben klíma került beszerelésre.

-A villanyhálózat vezetékezése réz, 1x32 Amper.

-Riasztórendszer is kialakításra került.

-A nyílászárók két rétegűek, fából készültek, redőnnyel felszereltek.

-Napelem is kiépítésre került, ami még szaldós.

-A nappaliban található egy cserépkályha, a szuterénben pedig egy kandalló.

-A szuterénben szintén megtalálható egy szauna, egy sófal, illetve egy edzőterem is.

-Kialakításra került egy borospince is.



FINANSZÍROZÁS:

Banki finanszírozással is megvásárolható, melyben irodánk ingyenes tanácsadással áll rendelkezésükre! VEVŐINK RÉSZÉRE A KÖZVETÍTÉS DÍJTALAN! A hirdetésben szereplő adatok tájékoztató jellegűek.

Családi ház részletei

Ár: 129 900 000 Ft
Méret: 200 négyzetméter
Azonosító: 11579910
Irodai azonosító: 23882
Telek: 850 négyzetméter
Ingatlan állapota:
Jelleg: családi ház
Építőanyag: Kérdezzen rá a hirdetőtől »
Fűtés jellege: Egyedi
Szintek száma: 2 szint
Egész szobák: 5

Így keressen családi házat négy egyszerű lépésben. Csupán 2 perc, kötelezettségek nélkül!

Szűkítse a családi házak
listáját
Válassza ki a megfelelő
családi házat
Írjon a hirdetőnek
Várjon a visszahívásra