Eladó családi ház Pilis 68 000 000 Ft

Leírás

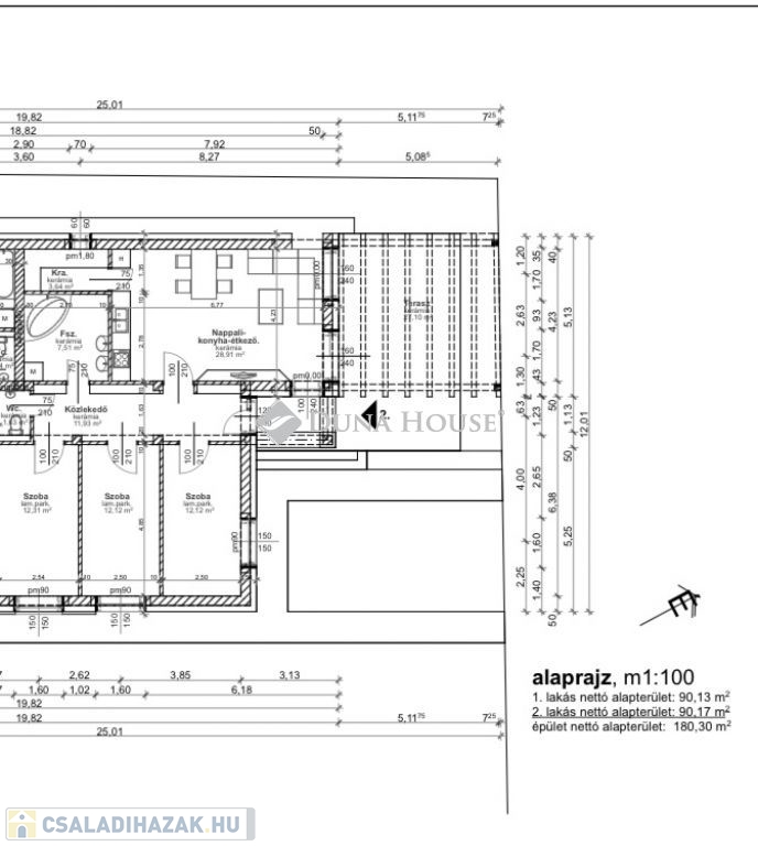
Pilisen eladó egy új építésű, 4 szobás ikerház, mely 90 m2-es alapterületével és kiváló elosztásával ideális otthon családok számára.

Az ingatlanban három tágas hálószoba, egy nagy nappali-konyha-étkező egyben, fürdőszoba, külön WC, kamra, valamint egy 27 m2-es fedett terasz található, ahol kellemesen eltöltheti szabadidejét.

A 494 m2-es telken egy különálló épület is helyet kapott, amely lakhatásra vagy akár irodai célra is alkalmas.

A ház fűtését korszerű hőszivattyú biztosítja, továbbá klímaberendezéssel felszerelt. A belső burkolatok még választhatók, így Ön alakíthatja ízlése szerint az otthonát.

Az ingatlan várható átadása 2 hónapon belül megtörténik.

A környék csendes és családbarát, iskola, óvoda, valamint üzletek csupán pár perc sétára találhatók. Az M4-es autópálya és a 4-es főút könnyen, 3 perc alatt elérhető, Budapest pedig mindössze 25 perc autóútra van.

Amennyiben felkeltette érdeklődését, kérem, keressen bizalommal!

Családi ház részletei

Ár: 68 000 000 Ft
Méret: 90 négyzetméter
Azonosító: 11557874
Irodai azonosító: HZ057682-5012542
Cím: Eladó 90 nm-es ház Pilis
Telek: 494 négyzetméter
Ingatlan állapota: Épülő
Jelleg: ikerház
Építőanyag: Tégla
Fűtés jellege: Villany
Fűtés módja: Hőszivattyú
Kor: Új építésű
Szintek száma: Földszintes
Egész szobák: 4

Térkép


Így keressen családi házat négy egyszerű lépésben. Csupán 2 perc, kötelezettségek nélkül!

Szűkítse a családi házak
listáját
Válassza ki a megfelelő
családi házat
Írjon a hirdetőnek
Várjon a visszahívásra