Eladó családi ház Pilis 66 625 000 Ft

Leírás

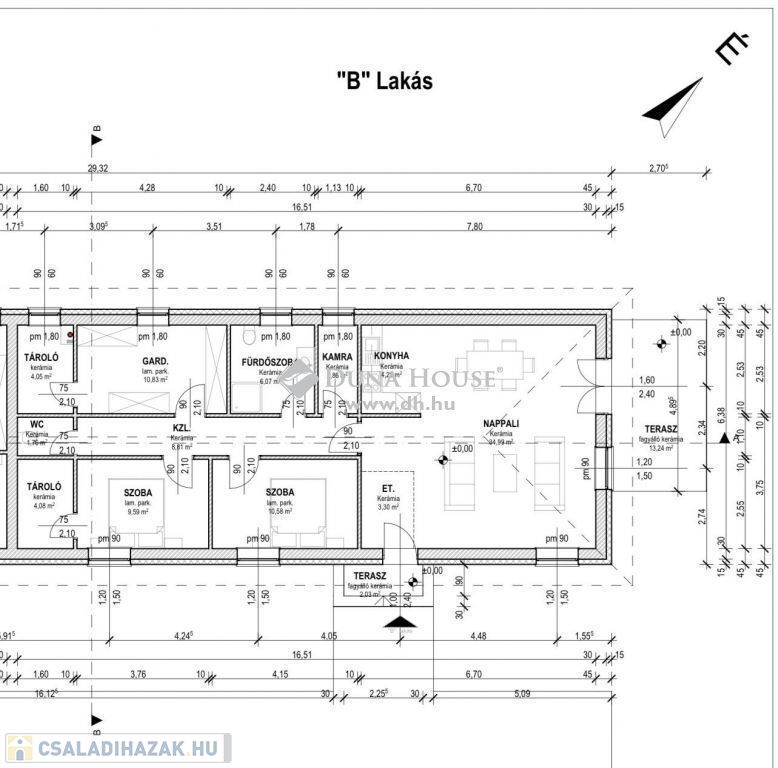
ELADÓ ÚJ ÉPÍTÉSŰ IKERHÁZ PILIS FREKVENTÁLT RÉSZÉN, VASÚTÁLLOMÁS KÖZELÉBEN!


AZ Ingatlan 102 m2 alapterületű egy 900 m2-es telken helyezkedik el. További terasz mérete 20m2. Kiváló lakóközösség zárt Lakóparkban helyezkedik el, új építésű, pár éves ingatlanok szomszédságában.

CSOK, 5%-os áfa, illetékmentesség igénybe vehető.

Kialakítása: 2 szoba, tágas 40 m2-es amerikai nappali konyha, kamra, fürdő+wc, külön wc, gardrób, 2 tároló.

Fűtést gázcirkó biztosítja, mindenhol padlófűtés. Nappaliban 3,5 kw-os inverteres klíma.

EXTRA: viacolor beálló, redőny, Geberit márkájú wc a falba süllyesztve.

Választható hideg és meleg burkolatok 900.000 Ft-ig telje réteg rendben. Dekor fóliás ajtók 60.000 Ft-ig választhatók.

Szigetelés 15 cm, tető szigetelés 30 cm. Sok referencia munkát tudok mutatni, nézzük meg együtt a helyszínt és a kész lakóingatlanokat.
Homlokzat: antracit lábazat, fehér falak, antracit tető.

Közelben: pár perc gyalogosan Vasútállomás, Gyógyszertár... bevásárlási lehetőségek, Iskola, Óvoda.
Budapest autóval M4-es autópálya 25 perc, vonattal Budapest Nyugati Pályaudvarig 50 perc.

Átadás: 2024. augusztus Megbízható kivitelező, több éve a piacon.

Amennyiben felkeltettem érdeklődését, várom megtisztelő hívását a hét bármely napján.

Családi ház részletei

Ár: 66 625 000 Ft
Méret: 102 négyzetméter
Azonosító: 11602579
Irodai azonosító: HZ099750-4527968
Telek: 900 négyzetméter
Ingatlan állapota: Épülő
Jelleg: ikerház
Építőanyag: Tégla
Fűtés jellege: Cirkó
Fűtés módja: Gáz
Kor: Új építésű
Szintek száma: Földszintes
Egész szobák: 3

Térkép


Így keressen családi házat négy egyszerű lépésben. Csupán 2 perc, kötelezettségek nélkül!

Szűkítse a családi házak
listáját
Válassza ki a megfelelő
családi házat
Írjon a hirdetőnek
Várjon a visszahívásra